highlight_off
Riferimento annuncio 316242 info

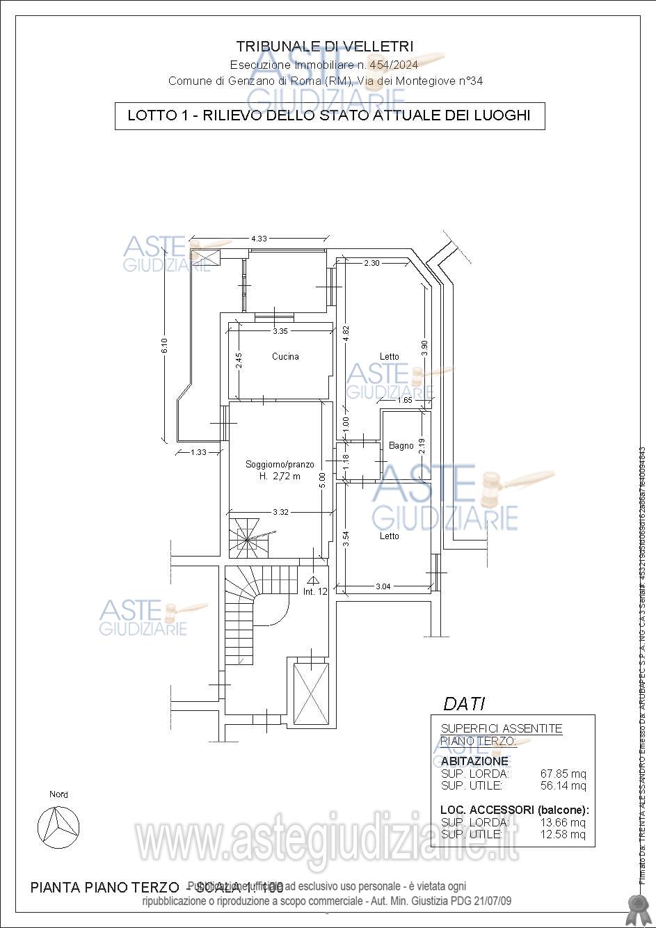
Appartamento VIA MONTE GIOVE NUOVO N. 34, 00045 Genzano di Roma (RM)

5,50
86,00
1
0
€ 116.000
Vendita all'asta Senza incanto, con gara telematica asincrona - LOTTO UNICO: APPARTAMENTO. Prezzo base € 116.000,00 (offerta minima € 87.000,00). Data inizio operazioni di vendita: 27/11/2025 ore 10:30. Professionista delegato alla vendita Avv. Ortensia Ebner - Email "ortensiaebner@libero.it"; Tel. 0693014110. Custode Giudiziario Avv. Ortensia Ebner - Email "ortensiaebner@libero.it"; Tel. 0693014110. Rif. Tribunale di Velletri - Espropriazione immobiliare (cartabia) n. 454/2024

Superficie 86,00 mq
Vani 5,50
Bagni 1
Piano 0

Tipologia di vendita Giudiziaria
Modalità di vendita Asincrona telematica
Termine presentazione offerte 26/11/2025 ore 23:59
Data e ora inizio gara 27/11/2025 ore 10:30
Codice ID astegiudiziarie.it 4337101
5,50
86,00
1
0
€ 116.000

Ti interessa questa vendita?

north_east

Clicca qui per essere indirizzato alla scheda sul sito di provenienza

Bene di astegiudiziarie.it