highlight_off
Riferimento annuncio 325035 info

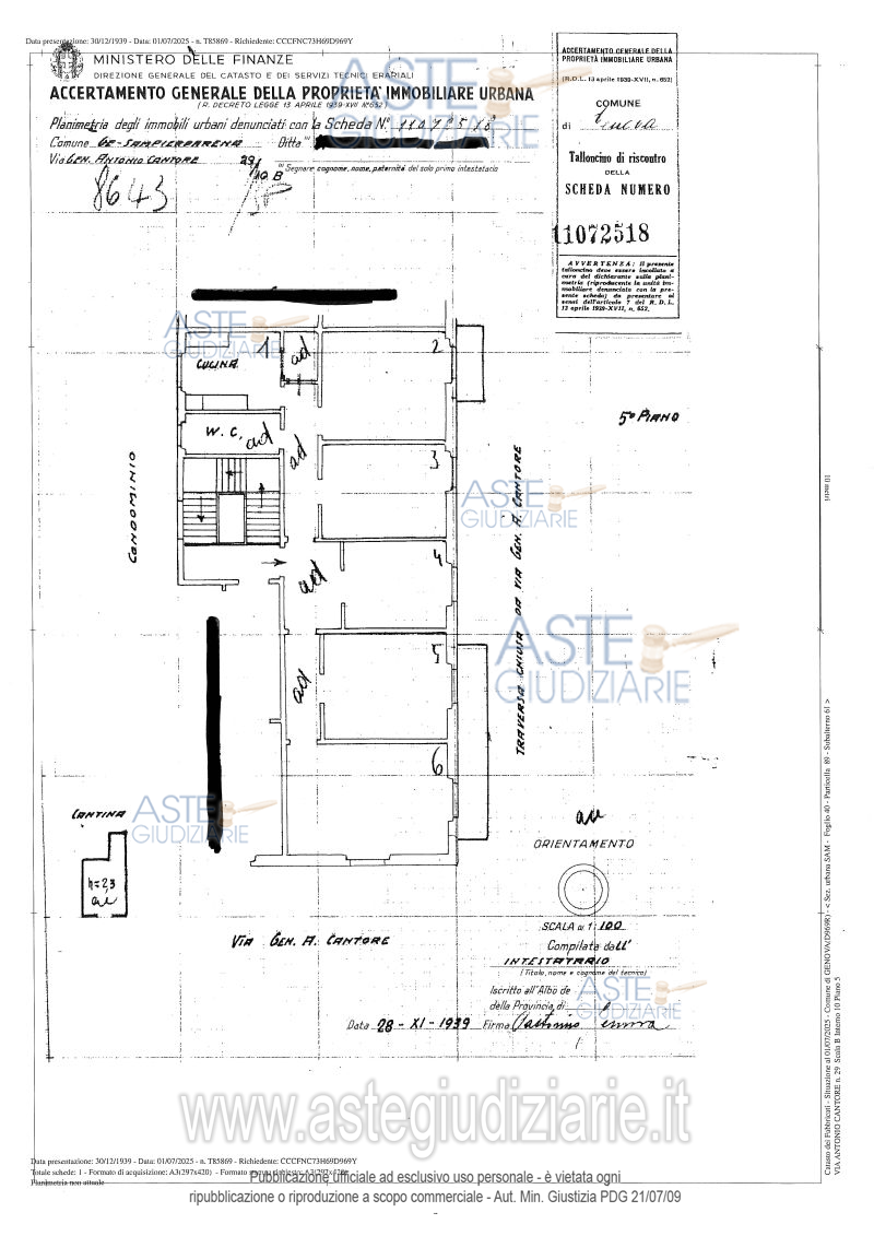
Appartamento Via Antonio Cantore, 29, 16149 Genova GE, Italia, 16100 Genova (GE)

8,00
143,00
0
€ 135.541
Vendita all'asta Senza incanto, con gara telematica sincrona mista - LOTTO UNICO: Piena ed intera proprietà dell'appartamento ubicato a Genova VIA ANTONIO CANTORE n. 29, scala B, interno 10, piano 5. Abitazione di tipo civile di 122 mq netti (commerciali141 mq) composta da un ingresso, soggiorno, camera matrimoniale, sala, una camera/studio, cucina, due bagni, ripostiglio e due balconi. Annessa come pertinenza una cantina, contraddistinta con n. 8 superficie netta di circa 3,75 mq. Prezzo base € 135.540,60 (offerta minima € 101.655,45). Data vendita 25/03/2026 ore 14:30. Professionista delegato alla vendita Dott. Elisabetta Bargelli - Email "elisabetta.bargelli@bureauplattner.com"; Tel. 010589081. Custode Giudiziario Sovemo Srl - Email "immobiliare@sovemo.com"; Tel. 0105299253. Rif. Tribunale di Genova - Espropriazione immobiliare (cartabia) n. 191/2025

Superficie 143,00 mq
Vani 8,00
Bagni
Piano 0

Tipologia di vendita Giudiziaria
Modalità di vendita Sincrona mista
Termine presentazione offerte 01/01/1900 ore 00:00
Data e ora inizio gara 25/03/2026 ore 14:30
Codice ID astegiudiziarie.it 4343317
8,00
143,00
0
€ 135.541

Ti interessa questa vendita?

north_east

Clicca qui per essere indirizzato alla scheda sul sito di provenienza

Bene di astegiudiziarie.it