highlight_off
Riferimento annuncio 320862 info

Appartamento Vico delle Compere, 2/interno 12, 16121 Genova GE, Italia, 16100 Genova (GE)

7,00
117,75
6
€ 416.160
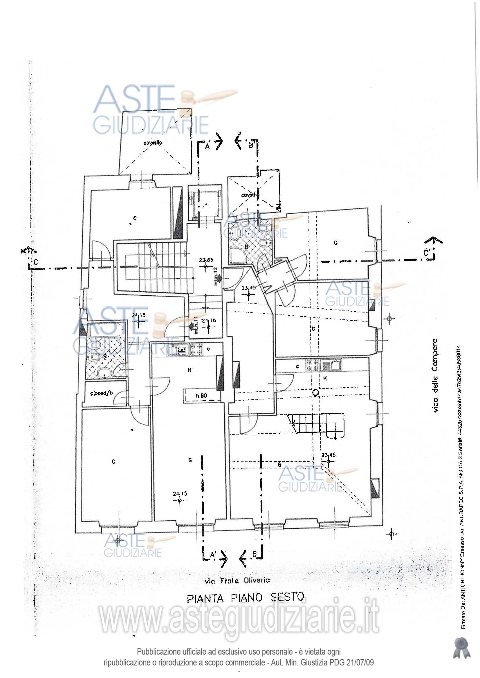
Vendita all'asta Senza incanto, con gara telematica sincrona mista - LOTTO UNICO: Appartamento su due livelli, composto da ingresso, soggiorno con angolo cottura, due camere e bagno. Attraverso una scala interna in legno posta nel soggiorno si accede al livello superiore, dove si trovano una camera e un bagno. Dal livello superiore si accede al terrazzo pertinenziale, dal quale si può godere di una gradevole vista. Il tutto per una superficie di 114,65 mq netti per l’abitazione e 10,87 mq per il terrazzo. Fa parte del lotto una cantina, a piano terra, di 3,1 mq netti. Prezzo base € 416.160,00. Data vendita 11/02/2026 ore 15:30. Professionista delegato alla vendita Avv. Monica Turri Caccia - Email "montur75@gmail.com"; Cell. 3479297944; Tel. 0103032619. Custode Giudiziario Dott. Sovemo Srl - Email "immobiliare@sovemo.com"; Tel. 0105299253. Rif. Tribunale di Genova - Espropriazione immobiliare (cartabia) n. 283/2023

Superficie 117,75 mq
Vani 7,00
Bagni
Piano 6

Tipologia di vendita Giudiziaria
Modalità di vendita Sincrona mista
Termine presentazione offerte 09/02/2026 ore 12:00
Data e ora inizio gara 11/02/2026 ore 15:30
Codice ID astegiudiziarie.it 4340581
7,00
117,75
6
€ 416.160

Ti interessa questa vendita?

north_east

Clicca qui per essere indirizzato alla scheda sul sito di provenienza

Bene di astegiudiziarie.it