Riferimento annuncio 314994
        
    
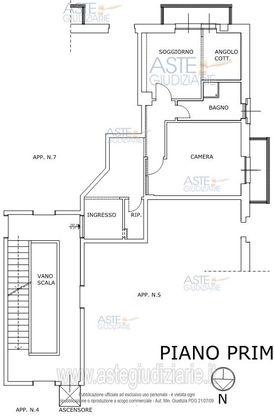
    Appartamento Via Matteo Vinzoni, 1, 16100 Genova (GE)
                
                3,50
            
            
                
                62,00
            
            
                
                1
            
        
€ 50.000    
                Vendita all'asta Senza incanto, con gara telematica sincrona mista - LOTTO UNICO:  Intera piena proprietà di appartamento ubicato in Genova, Via Matteo Vinzoni 1/6, piano 1. Prezzo base € 50.000,00 (offerta minima € 37.500,00). Data vendita 13/11/2025 ore 15:00. Professionista delegato alla vendita Dott. Elisa Papandrea - Email "elisa.papandrea@studiobenzi.com". Custode Giudiziario  Renata Boilini - Email "visitegenova@sovemo.com"; Tel. 0105299253.  Rif. Tribunale di Genova - Espropriazione immobiliare (cartabia) n. 38/2025
            
   
| Superficie | 62,00 mq | 
|---|---|
| Vani | 3,50 | 
| Bagni | |
| Piano | 1 | 
| Tipologia di vendita | Giudiziaria | 
|---|---|
| Modalità di vendita | Sincrona mista | 
| Termine presentazione offerte | 11/11/2025 ore 12:00 | 
| Data e ora inizio gara | 13/11/2025 ore 15:00 |