highlight_off
Riferimento annuncio 310245 info

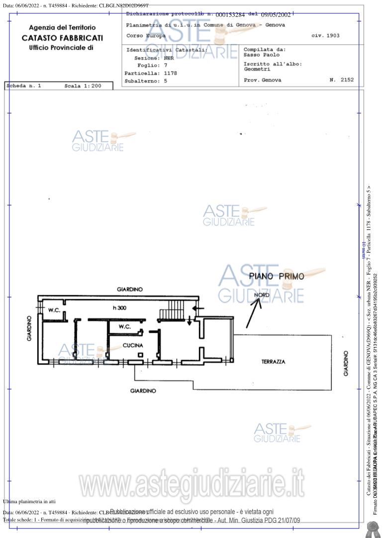
Appartamento C.so Europa, 1903, 16167 Genova GE, Italia, 16100 Genova (GE)

5,50
1354,32
1
€ 754.889
Vendita in attesa dell'emissione del nuovo bando d'asta. LOTTO UNICO: LOTTO UNICO in Comune di Genova (GE), Corso Europa civici 1901 e 1903 / Salita Inferiore alla Contadina civici 2 e 4, costituito da edificio bifamiliare, composto da n. 2 appartamenti, n. 1 box interrato, n. 1 autorimessa ed area urbana. Ultimo prezzo base € 754.889,00 (offerta minima € 566.166,75). Giudice Dott. Andrea Balba. Professionista delegato alla vendita Avv. Cristina Carena - Email "cristina.carena@sla-ap.it"; Tel. 010541263. Custode Giudiziario Dott. Sovemo Srl - Email "immobiliare@sovemo.com"; Tel. 0105299253. Rif. Tribunale di Genova - Esecuzione immobiliare post legge 80 n. 92/2022

Superficie 1354,32 mq
Vani 5,50
Bagni
Piano 1

Tipologia di vendita Giudiziaria
Modalità di vendita Sincrona mista
Termine presentazione offerte 22/09/2025 ore 12:00
Data e ora inizio gara 24/09/2025 ore 16:00
Codice ID astegiudiziarie.it 4331947
5,50
1354,32
1
€ 754.889

Ti interessa questa vendita?

north_east

Clicca qui per essere indirizzato alla scheda sul sito di provenienza

Bene di astegiudiziarie.it