highlight_off
Riferimento annuncio 113225 info

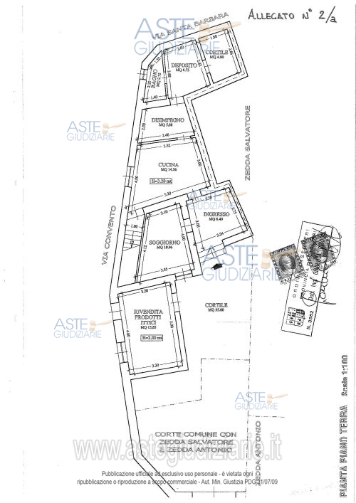
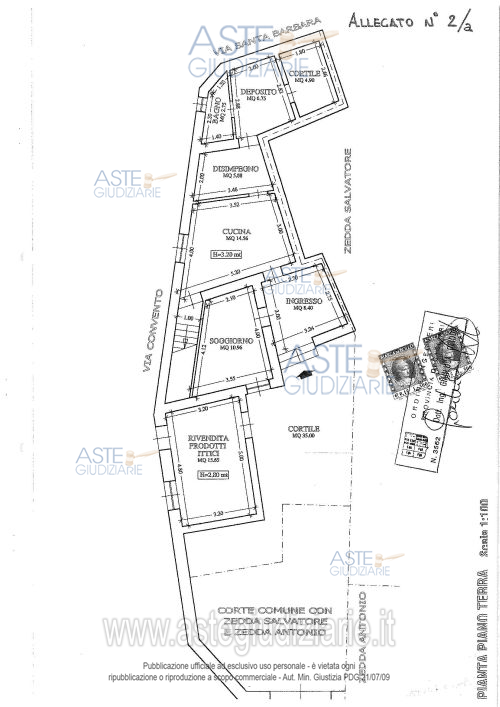
Appartamento Via Convento, 22, 08030 Genoni (SU)

5,00
170,23
0
€ 25.200
Vendita all'asta Senza incanto, con gara telematica asincrona - LOTTO 1: Quota pari a 1/1 del diritto di proprietà sull'immobile censito al Catasto Fabbricati del Comune di Genoni (SU), al foglio 15, particella 46, nella via Convento n. 22, Piani T-1, Cat. A/4 Classe U, consistenza 5 vani, superficie mq 170,23, rendita catastale euro 167,85. Prezzo base € 25.200,00 (offerta minima € 18.900,00). Data inizio operazioni di vendita: 24/03/2026 ore 10:00. Giudice Silvia Cocco. Professionista delegato alla vendita Dott. Giuseppe Marongiu - Email "studio@studiomarongiu.it"; Tel. 0704560865. Custode Giudiziario Lino Icilio Felice Fresi - Email "ivg.cagliari@tiscali.it"; Tel. 0702299036. Rif. Tribunale di Cagliari - Esecuzione immobiliari n. 312/1998

Superficie 170,23 mq
Vani 5,00
Bagni
Piano 0

Tipologia di vendita Giudiziaria
Modalità di vendita Asincrona telematica
Termine presentazione offerte 23/03/2026 ore 10:00
Data e ora inizio gara 24/03/2026 ore 10:00
Codice ID astegiudiziarie.it 174549
5,00
170,23
0
€ 25.200

Ti interessa questa vendita?

north_east

Clicca qui per essere indirizzato alla scheda sul sito di provenienza

Bene di astegiudiziarie.it