highlight_off
Riferimento annuncio 315049 info

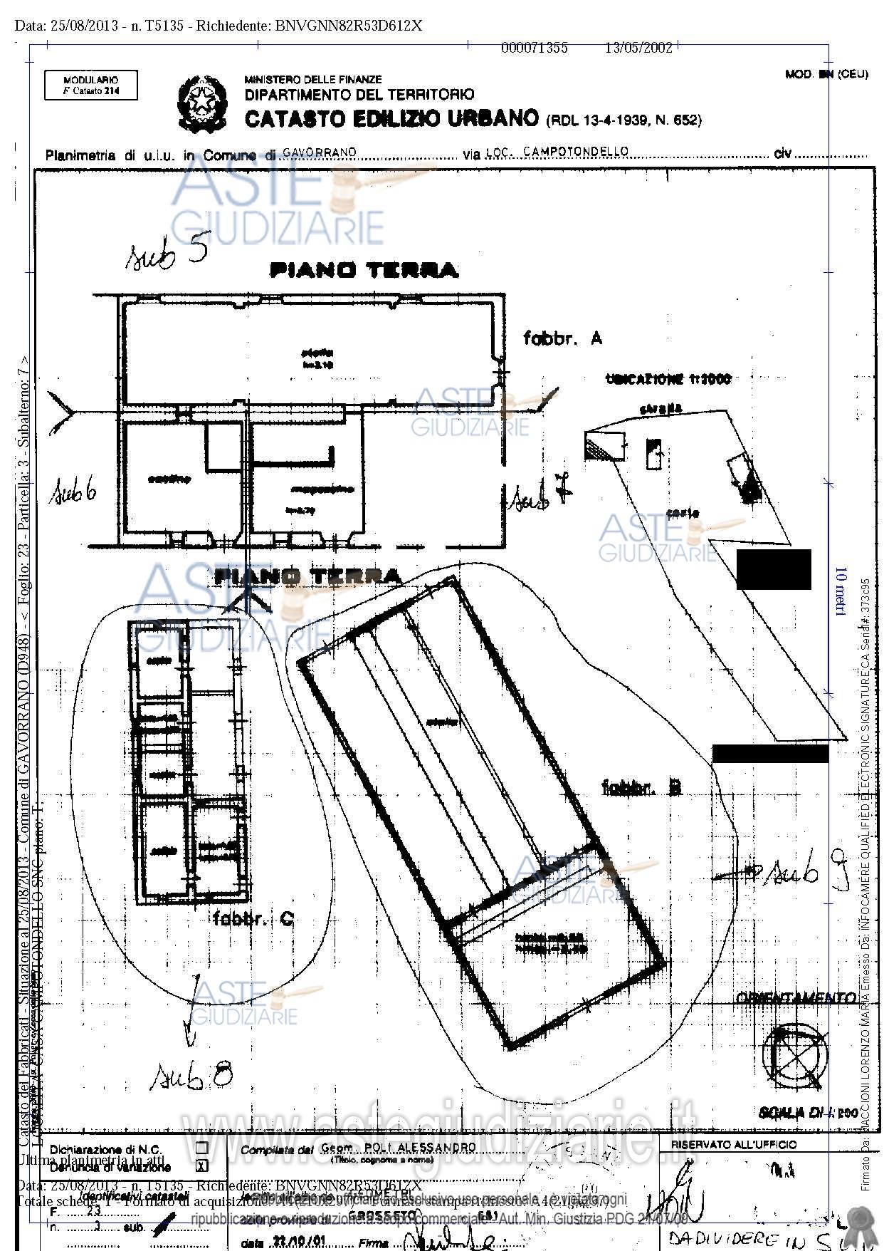
Appartamento località Campotondello, 58023 Gavorrano (GR)

0
€ 386.920
Vendita all'asta Senza incanto, con gara telematica asincrona - LOTTO 6: IMMOBILE destinato a civile abitazione disposto su 3 livelli (piano terra, piano primo e secondo). Prezzo base € 386.920,00 (offerta minima € 290.190,00). Data inizio operazioni di vendita: 17/06/2026 ore 10:00. Professionista delegato alla vendita: Avv. Francesca Del Pasqua - Email "francescadelpasqua@gmail.com"; Cell. 328/8263266. Custode Giudiziario: Lucia Ghelli - Email "ivggrosseto@astagiudiziaria.com"; Cell. 342/6598791. Rif. Tribunale di Grosseto - Esecuzione immobiliare post legge 80 n. 268/2012

Superficie mq
Vani
Bagni
Piano 0

Tipologia di vendita Giudiziaria
Modalità di vendita Asincrona telematica
Termine presentazione offerte 01/01/1900 ore 00:00
Data e ora inizio gara 17/06/2026 ore 10:00
Codice ID astegiudiziarie.it 4335810
0
€ 386.920

Ti interessa questa vendita?

north_east

Clicca qui per essere indirizzato alla scheda sul sito di provenienza

Bene di astegiudiziarie.it