highlight_off
Riferimento annuncio 329113 info

Appartamento Via L. Bollino, 4, 10090 Gassino Torinese TO, Italia, 10090 Gassino Torinese (TO)

8,00
212,69
0
€ 161.000
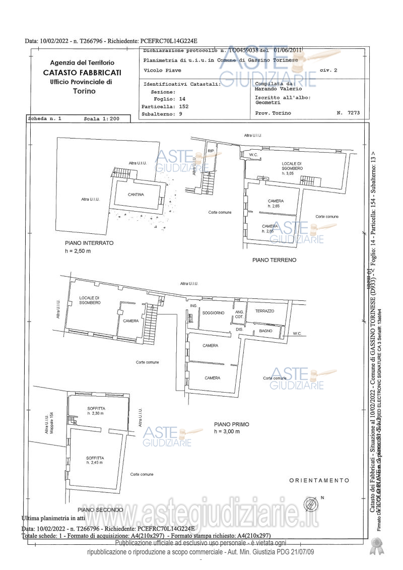
Vendita all'asta Senza incanto, con gara telematica asincrona - LOTTO 2: Bene 1: autorimessa al piano terreno ubicata in Vicolo Piave n. 2.Bene 2: abitazione al piano primo ubicata in Via Bollino n. 4. Prezzo base € 161.000,00 (offerta minima € 120.750,00). Data inizio operazioni di vendita: 20/05/2026 ore 09:30. Giudice: Augusto Salustri. Professionista delegato alla vendita: Avv. Antonio Sconza - Email "antonio.sconza@outlook.it"; Tel. 0125/282417. Custode Giudiziario: Torino Ifir Piemonte - Email "richiestevisite.ivrea@ivgpiemonte.it". Rif. Tribunale di Ivrea - Contenzioso civile n. 2385/2024

Superficie 212,69 mq
Vani 8,00
Bagni
Piano 0

Tipologia di vendita Giudiziaria
Modalità di vendita Asincrona telematica
Termine presentazione offerte 19/05/2026 ore 12:30
Data e ora inizio gara 20/05/2026 ore 09:30
Codice ID astegiudiziarie.it 4347316
8,00
212,69
0
€ 161.000

Ti interessa questa vendita?

north_east

Clicca qui per essere indirizzato alla scheda sul sito di provenienza

Bene di astegiudiziarie.it