highlight_off
Riferimento annuncio 333361 info

Appartamento Localita' Camporbiano snc, 50050 Gambassi Terme (FI)

75,00
0
€ 59.500
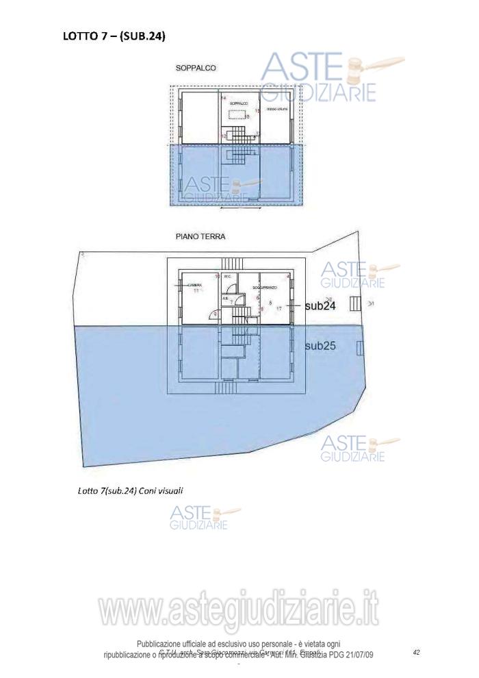
Vendita all'asta Senza incanto, con gara telematica sincrona - LOTTO 2: Piena proprietà dei seguenti beni: - case a schiera su 2 piani con giardino anteriore e posteriore e beni comuni all'insieme delle RTA BORGO LA FUNGAIA oltre a 4 appezzamenti di terreno boschivi ad esso contermini. Gli edifici presentano una dimensione e distribuzione pressoché identica su 2 piani e si differenziano esclusivamente per esposizione. Prezzo base € 59.500,00 (offerta minima € 44.625,00). Data vendita 01/07/2026 ore 12:00. Giudice: Dott. Francesca Romana Bisegna. Professionista delegato alla vendita: Dott. Daniele Dani - Email "daniele.dani@chiostriconti.it". Custode Giudiziario: Istituto Vendite Giudiziarie Di Firenze - Email "prenota.fi@isveg.it"; Tel. 055/2340830. Rif. Tribunale di Firenze - Esecuzione immobiliare post legge 80 n. 139/2022

Superficie 75,00 mq
Vani
Bagni
Piano 0

Tipologia di vendita Giudiziaria
Modalità di vendita Sincrona telematica
Termine presentazione offerte 01/01/1900 ore 00:00
Data e ora inizio gara 01/07/2026 ore 12:00
Codice ID astegiudiziarie.it 4350703
75,00
0
€ 59.500

Ti interessa questa vendita?

north_east

Clicca qui per essere indirizzato alla scheda sul sito di provenienza

Bene di astegiudiziarie.it