highlight_off
Riferimento annuncio 315096 info

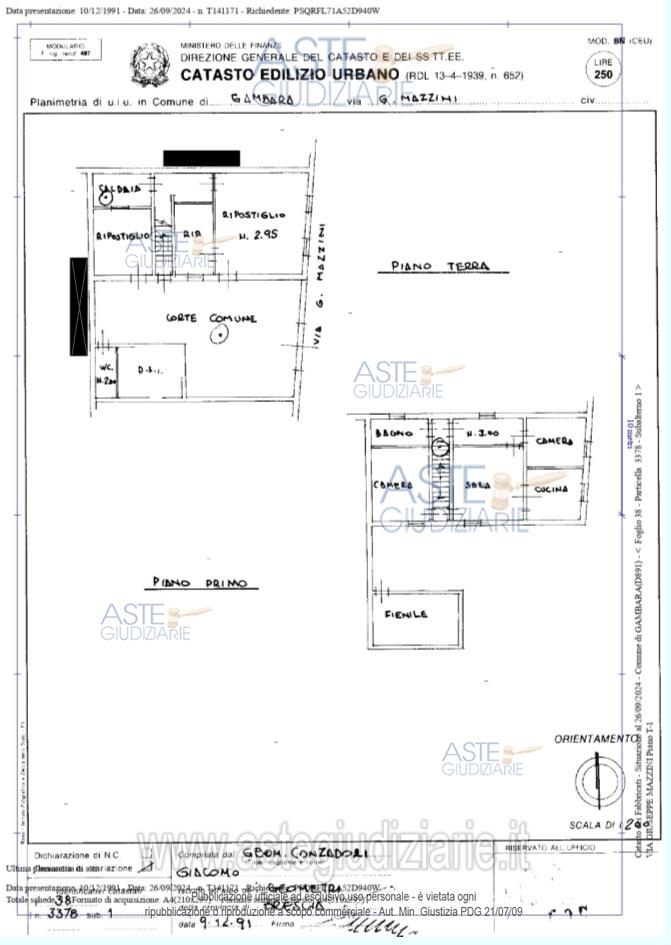
Appartamento Via Mazzini, 14, 25020 Gambara BS, Italia, 25020 Gambara (BS)

8,00
160,00
0
€ 220.900
Vendita all'asta Senza incanto, con gara telematica asincrona - LOTTO UNICO: Trattasi di appartamento in fabbricato unifamiliare con corte privata e lavanderia con bagno infabbricato distinto, con le proporzionali quote delle parti comuni ai sensi di legge. Prezzo base € 220.900,00 (offerta minima € 165.675,00). Data inizio operazioni di vendita: 11/11/2025 ore 10:00. Giudice Alessandro Pernigotto. Professionista delegato alla vendita Avv. Claudio Pasquale Santoro - Email "claudio.santoro84@gmail.com". Custode Giudiziario Avv. Claudio Pasquale Santoro - Email "claudio.santoro84@gmail.com". Rif. Tribunale di Brescia - Espropriazione immobiliare (cartabia) n. 308/2024

Superficie 160,00 mq
Vani 8,00
Bagni
Piano 0

Tipologia di vendita Giudiziaria
Modalità di vendita Asincrona telematica
Termine presentazione offerte 10/11/2025 ore 12:00
Data e ora inizio gara 11/11/2025 ore 10:00
Codice ID astegiudiziarie.it 4336324
8,00
160,00
0
€ 220.900

Ti interessa questa vendita?

north_east

Clicca qui per essere indirizzato alla scheda sul sito di provenienza

Bene di astegiudiziarie.it