highlight_off
Riferimento annuncio 322718 info

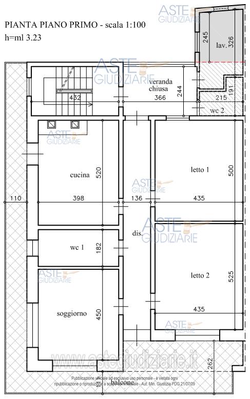
Appartamento Via del Mare n.18, 73034 Gagliano del Capo (LE)

0
€ 47.900
Vendita all'asta Senza incanto, con gara telematica asincrona - LOTTO UNICO: Nuda proprietà per la quota di 1/1 di abitazione di tipo civile sito in Gagliano del Capo (Le) alla Via del Mare n.18. L’immobile posto al piano terra e primo, sviluppa una superficie reale lorda di 354.00 mq. L’usufruttuario è nato il 12/07/1952. Prezzo base € 47.900,00 (offerta minima € 35.925,00). Data inizio operazioni di vendita: 17/02/2026 ore 10:00. Professionista delegato alla vendita Dott. Alessandro Cuomo - Email "alessandro_cuomo@tiscali.it"; Cell. 3891618613; Tel. 0832317590. Custode Giudiziario Dott. Alessandro Cuomo - Email "alessandro_cuomo@tiscali.it"; Cell. 3891618613; Tel. 0832317590. Rif. Tribunale di Lecce - Esecuzione immobiliare post legge 80 n. 323/2022

Superficie mq
Vani
Bagni
Piano 0

Tipologia di vendita Giudiziaria
Modalità di vendita Asincrona telematica
Termine presentazione offerte 01/01/1900 ore 00:00
Data e ora inizio gara 17/02/2026 ore 10:00
Codice ID astegiudiziarie.it 4342359
0
€ 47.900

Ti interessa questa vendita?

north_east

Clicca qui per essere indirizzato alla scheda sul sito di provenienza

Bene di astegiudiziarie.it