highlight_off
Riferimento annuncio 319425 info

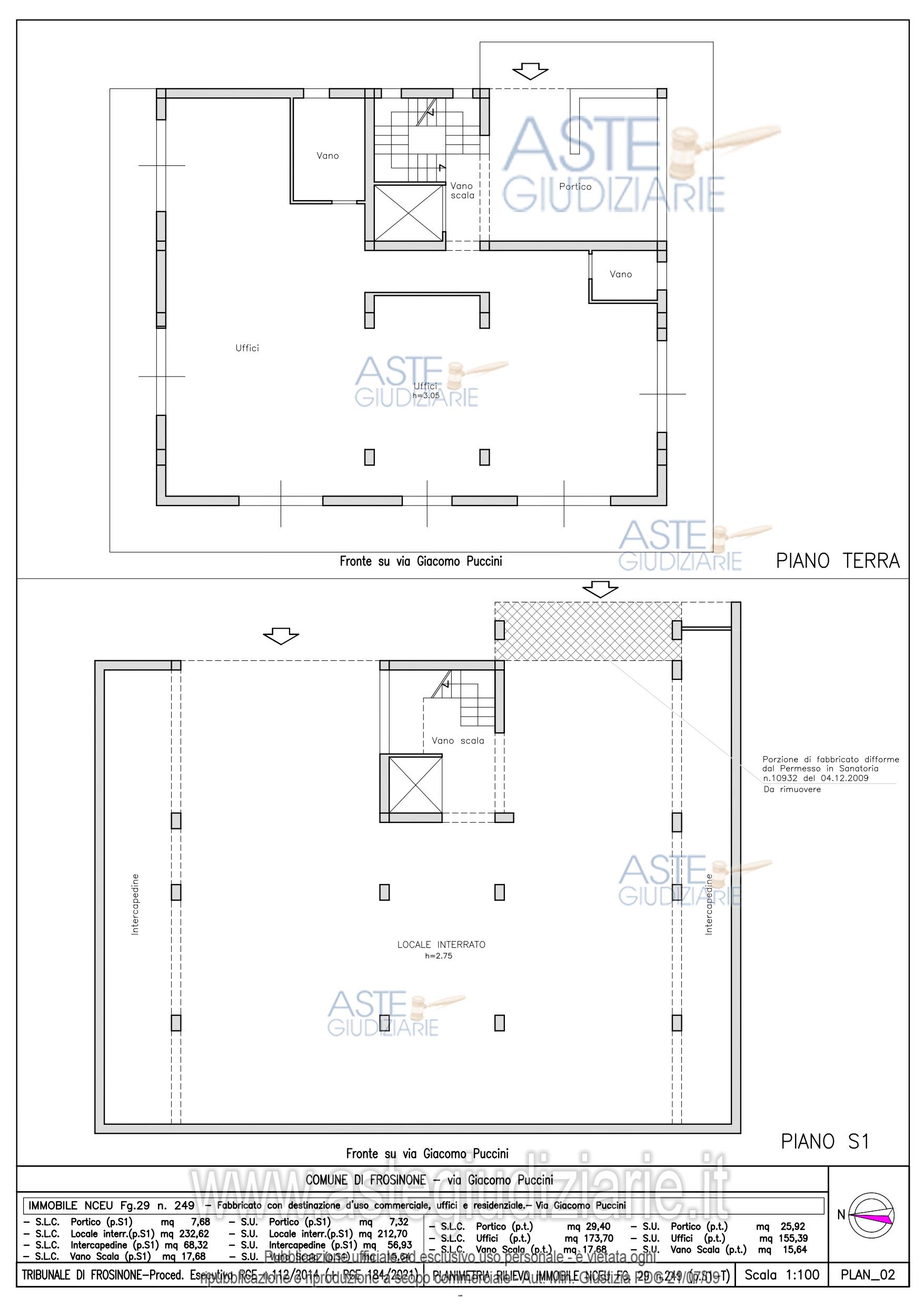
Appartamento Via Giacomo Puccini, 03100 Frosinone (FR)

20,00
623,00
0
€ 338.635
Vendita all'asta Senza incanto, con gara telematica asincrona - LOTTO 5: Fabbricato in corso di costruzione al piano seminterrato, terra, primo, secondo e sottotetto. Prezzo base € 338.635,00 (offerta minima € 253.980,00). Data inizio operazioni di vendita: 08/01/2026 ore 16:00. Giudice Dott. Simona Di Nicola. Professionista delegato alla vendita Avv. Lorenza Silvaggi - Email "lorenza.silvaggi@libero.it". Custode Giudiziario Avv. Lorenza Silvaggi - Email "lorenza.silvaggi@libero.it". Rif. Tribunale di Frosinone - Esecuzione immobiliare post legge 80 n. 112/2014

Superficie 623,00 mq
Vani 20,00
Bagni
Piano 0

Tipologia di vendita Giudiziaria
Modalità di vendita Asincrona telematica
Termine presentazione offerte 07/01/2026 ore 12:00
Data e ora inizio gara 08/01/2026 ore 16:00
Codice ID astegiudiziarie.it 4339398
20,00
623,00
0
€ 338.635

Ti interessa questa vendita?

north_east

Clicca qui per essere indirizzato alla scheda sul sito di provenienza

Bene di astegiudiziarie.it