highlight_off
Riferimento annuncio 307169 info

Appartamento Via Camillo Benso Cavour, 2, 15040 Frassineto Po AL, Italia, 15040 Frassineto Po (AL)

12,00
343,00
3
0
€ 143.650
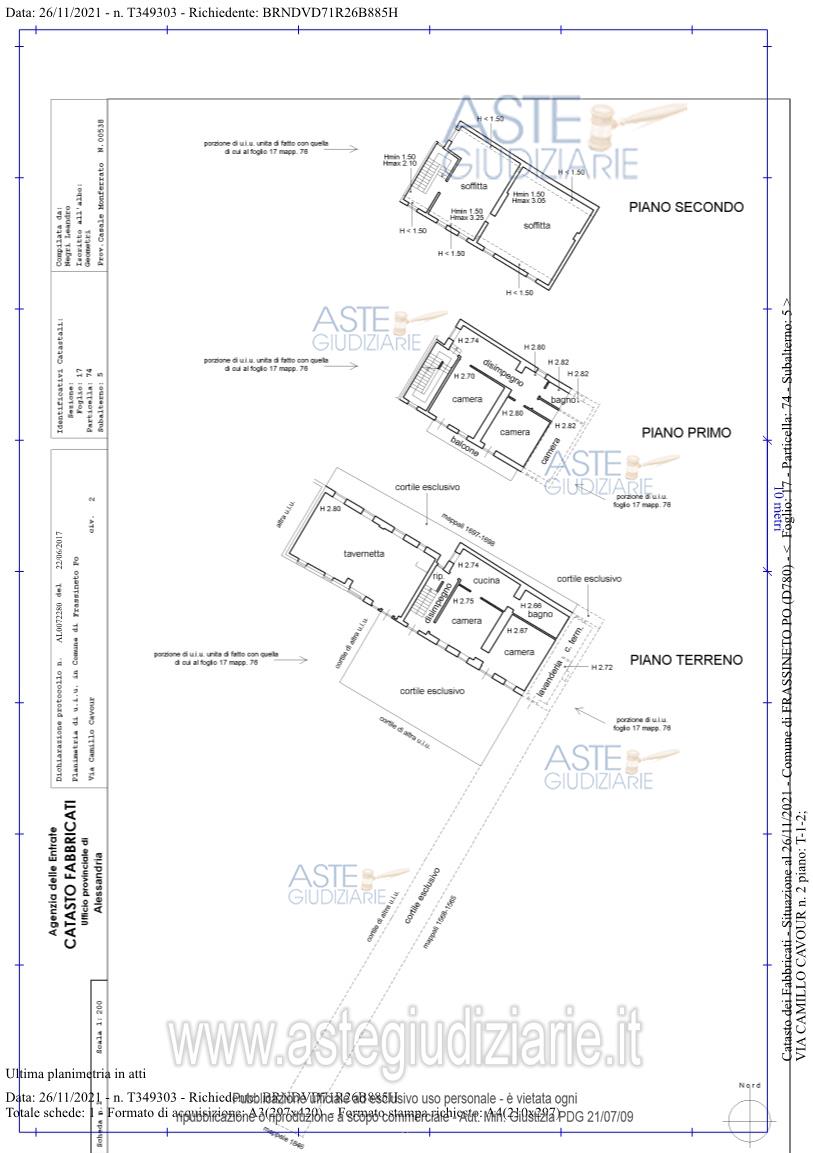
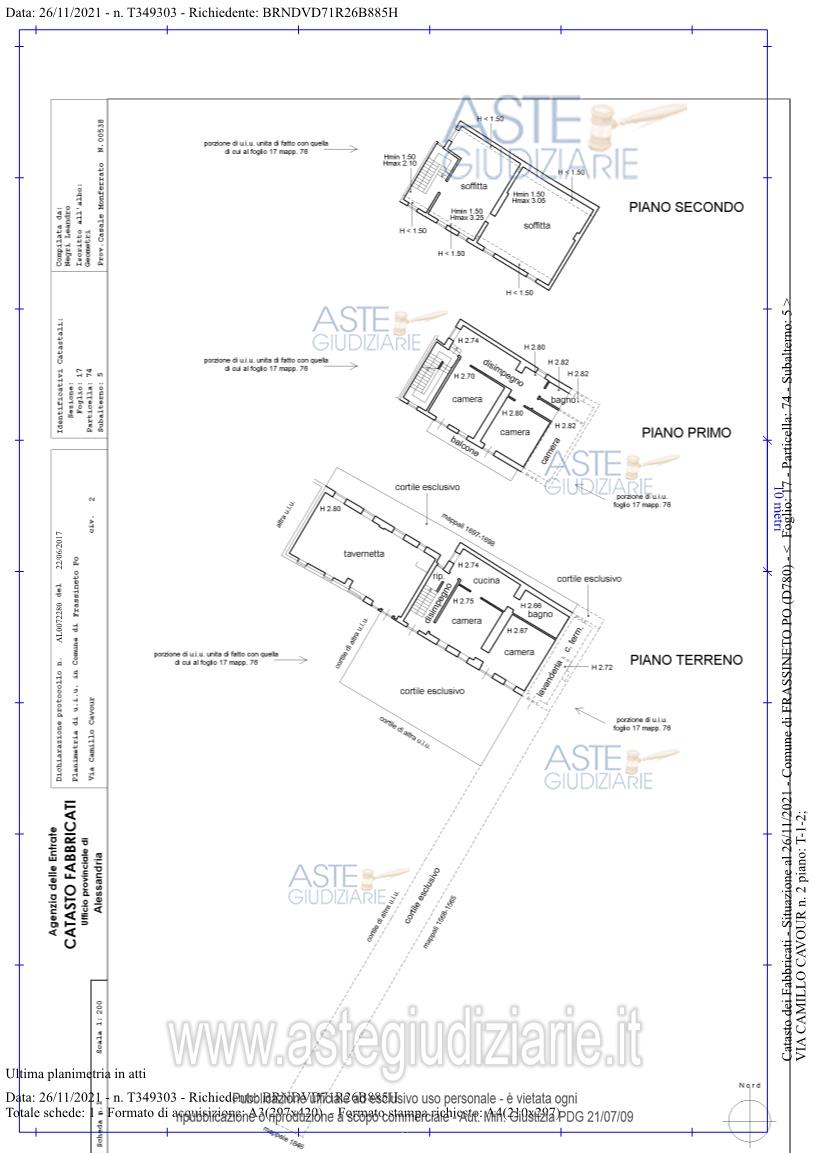
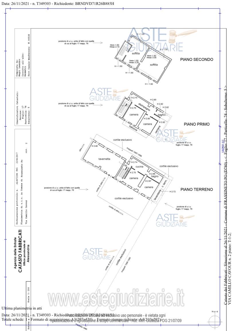
Vendita all'asta Senza incanto, con gara telematica asincrona - LOTTO 2: Fabbricato di civile abitazione elevato su tre piani fuori terra per la parte residenziale e un piano fuori terra le pertinenze, cui si aggiungono altri fabbricati ex agricoli destinati in parte a tettoie e in parte a ricovero attrezzature, un fabbricato ex agricolo destinato a garage elevato su un piano fuori terra di mq 81,45 ed un terreno pertinenziale all’abitazione di mq 776,00. Prezzo base € 143.650,00 (offerta minima € 107.737,50). Data inizio operazioni di vendita: 26/11/2025 ore 15:30. Giudice Annalisa Fanini. Professionista delegato alla vendita Avv. Franco Bussi - Email "f.bussi@studiolegalebussi.it"; Tel. 0161701034. Custode Giudiziario Avv. Franco Bussi - Email "f.bussi@studiolegalebussi.it"; Tel. 0161701034. Rif. Tribunale di Vercelli - Esecuzione immobiliare post legge 80 n. 25/2020

Superficie 343,00 mq
Vani 12,00
Bagni 3
Piano 0

Tipologia di vendita Giudiziaria
Modalità di vendita Asincrona telematica
Termine presentazione offerte 25/11/2025 ore 12:00
Data e ora inizio gara 26/11/2025 ore 15:30
Codice ID astegiudiziarie.it 4329400
12,00
343,00
3
0
€ 143.650

Ti interessa questa vendita?

north_east

Clicca qui per essere indirizzato alla scheda sul sito di provenienza

Bene di astegiudiziarie.it