highlight_off
Riferimento annuncio 311610 info

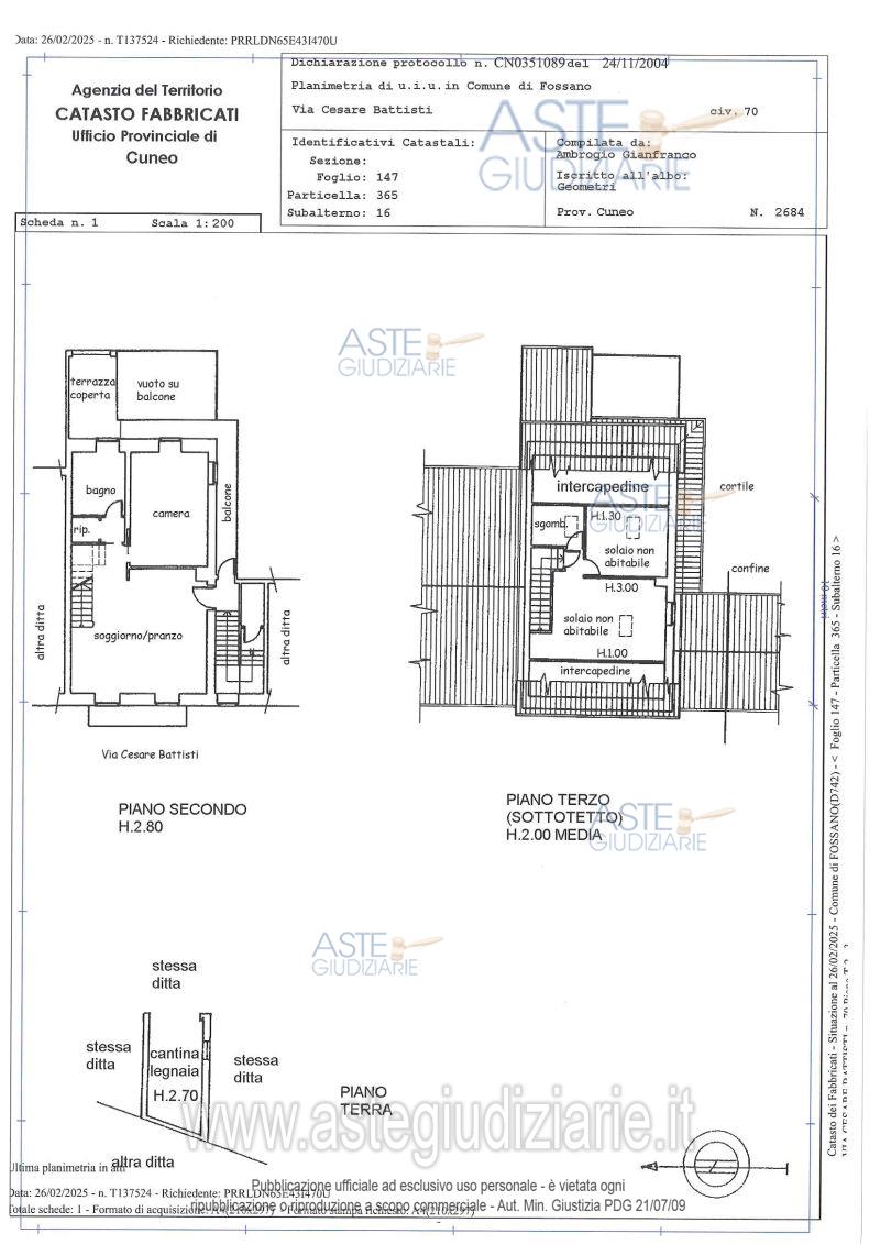
Appartamento Via Cesare Battisti, 70, 12045 Fossano CN, Italia, 12045 Fossano (CN)

0
€ 188.000
Vendita all'asta Senza incanto, con gara telematica asincrona - LOTTO UNICO: Alloggio e cantina. Prezzo base € 188.000,00 (offerta minima € 141.000,00). Data inizio operazioni di vendita: 28/10/2025 ore 14:30. Professionista delegato alla vendita Avv. Carlo Galvagno - Email "segreteria.esecuzioni@gmail.com"; Tel. 0116599708. Custode Giudiziario Ifir Piemonte - Ivg Srl - Email "richiestevisite.cuneo@ivgpiemonte.it"; Tel. 011482822. Rif. Tribunale di Cuneo - Espropriazione immobiliare (cartabia) n. 156/2024

Superficie mq
Vani
Bagni
Piano 0

Tipologia di vendita Giudiziaria
Modalità di vendita Asincrona telematica
Termine presentazione offerte 27/10/2025 ore 12:00
Data e ora inizio gara 28/10/2025 ore 14:30
Codice ID astegiudiziarie.it 4333238
0
€ 188.000

Ti interessa questa vendita?

north_east

Clicca qui per essere indirizzato alla scheda sul sito di provenienza

Bene di astegiudiziarie.it