highlight_off
Riferimento annuncio 310155 info

Appartamento Via della Selvotta, 00060 Formello RM, Italia, 00060 Formello (RM)

0
€ 331.737
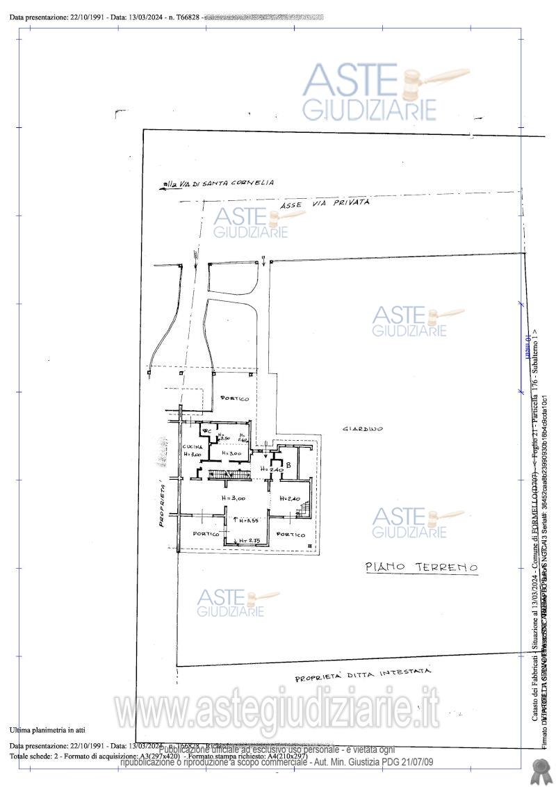
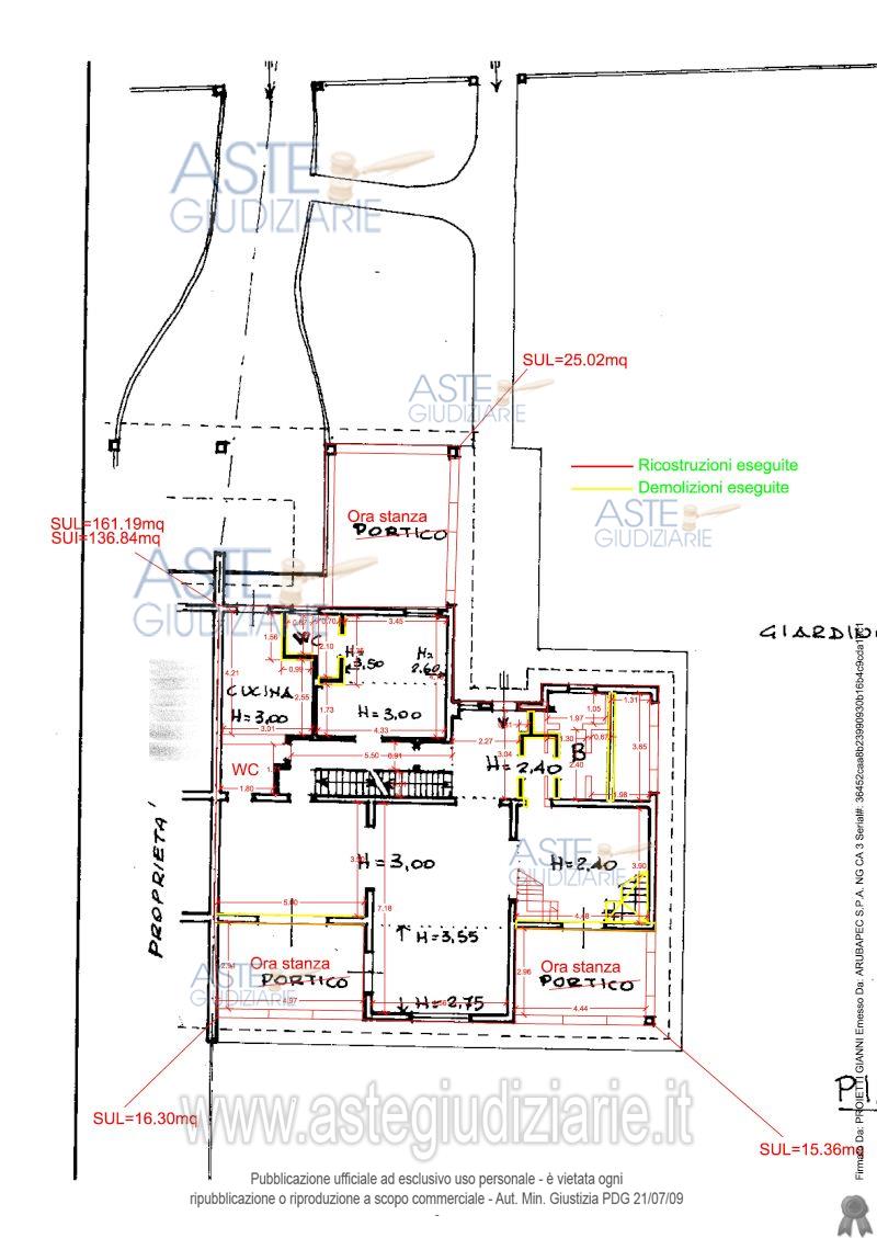
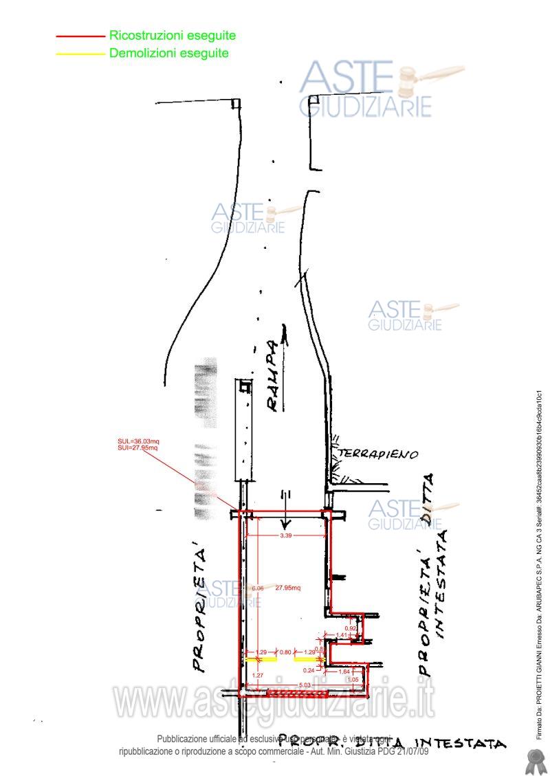
Vendita all'asta Senza incanto, con gara telematica asincrona - LOTTO UNICO: villino residenziale. Prezzo base € 331.737,30 (offerta minima € 248.802,98). Data inizio operazioni di vendita: 20/11/2025 ore 14:00. Giudice Dott. Francesco Lupia. Professionista delegato alla vendita Avv. Febia Bartoli - Email "avv.febiabartoli@gmail.com"; Tel. 0774334185. Custode Giudiziario Ivg Di Roma Srl - Email "pvp@visiteivgroma.it"; Tel. 0683751500. Rif. Tribunale di Tivoli - Espropriazione immobiliare (cartabia) n. 459/2023

Superficie mq
Vani
Bagni
Piano 0

Tipologia di vendita Giudiziaria
Modalità di vendita Asincrona telematica
Termine presentazione offerte 19/11/2025 ore 23:59
Data e ora inizio gara 20/11/2025 ore 14:00
Codice ID astegiudiziarie.it 4331876
0
€ 331.737

Ti interessa questa vendita?

north_east

Clicca qui per essere indirizzato alla scheda sul sito di provenienza

Bene di astegiudiziarie.it