highlight_off
Riferimento annuncio 310216 info

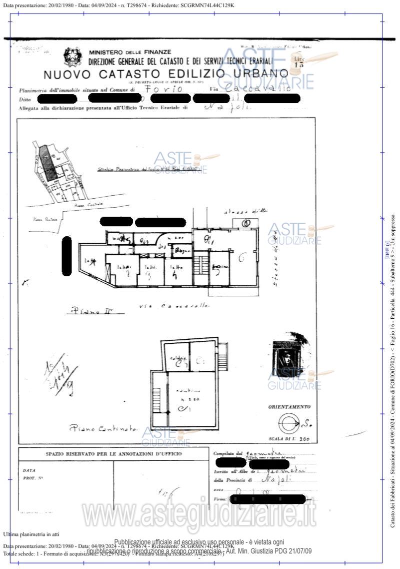
Appartamento Via Caccavaio n. 9, 80075 Forio (NA)

8,00
160,00
0
€ 277.500
Vendita all'asta Senza incanto, con gara telematica asincrona - LOTTO 2: Piena ed intera proprietà di abitazione, ubicata al secondo piano con accesso di fronte salendo le scale, composta da ingresso, soggiorno doppio, quattro camere, cucina, due bagni dei quali uno in camera, lavanderia/deposito e corridoio, oltre cantina al piano interrato. Prezzo base € 277.500,00 (offerta minima € 208.125,00). Data inizio operazioni di vendita: 24/03/2026 ore 10:30. Giudice Miriam Valenti. Professionista delegato alla vendita Avv. Paola Ciuoffo - Email "paolaciuoffo@gmail.com". Custode Giudiziario Avv. Paola Ciuoffo - Email "paolaciuoffo@gmail.com". Rif. Tribunale di Napoli - Espropriazione immobiliare (cartabia) n. 439/2024

Superficie 160,00 mq
Vani 8,00
Bagni
Piano 0

Tipologia di vendita Giudiziaria
Modalità di vendita Asincrona telematica
Termine presentazione offerte 23/03/2026 ore 12:00
Data e ora inizio gara 24/03/2026 ore 10:30
Codice ID astegiudiziarie.it 4331534
8,00
160,00
0
€ 277.500

Ti interessa questa vendita?

north_east

Clicca qui per essere indirizzato alla scheda sul sito di provenienza

Bene di astegiudiziarie.it