highlight_off
Riferimento annuncio 326192 info

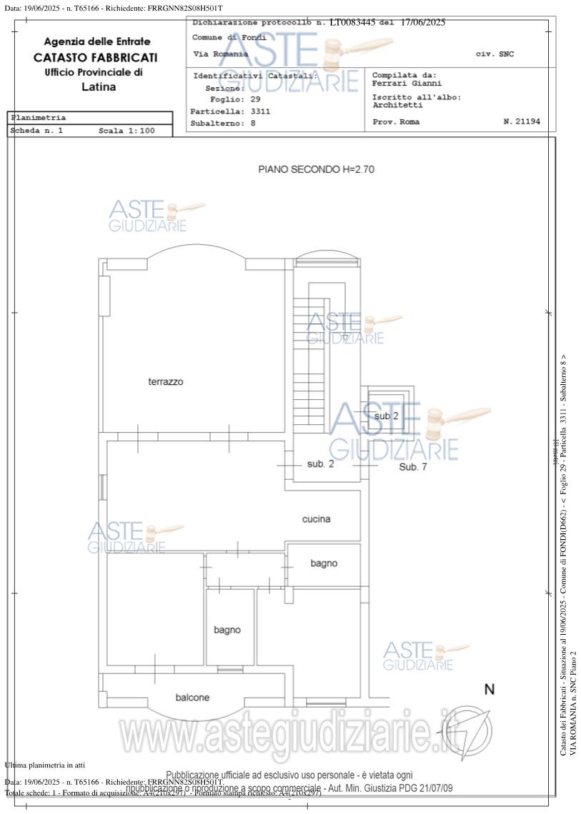
Appartamento Via Romania, 12, 04022 Fondi LT, Italia, 04022 Fondi (LT)

6,00
243,00
0
€ 120.000
Vendita all'asta Senza incanto, con gara telematica asincrona - LOTTO 6: Bene n. 6.: Appartamento in Fondi , Via Romania n. 12, in catasto urbano al foglio 29 particella 3311 sub 8 cat A/2;. Bene n. 8: Terrazza censita in catasto urbano al foglio 29 particella 3311 subalterno 10. Bene n. 16: Posto auto in autorimessa censito nel catasto urbano al foglio 29 particella 3311 sub 18 cat F/3. Bene n. 19: Posto auto scoperto in catasto urbano al foglio 29 particella 3313 sub 3 cat c/6. Bene n. 20: Posto auto scoperto a raso, censito in catasto urbano al foglio 29 part. 3313 sub.4. Prezzo base € 120.000,00 (offerta minima € 90.000,00). Data inizio operazioni di vendita: 05/05/2026 ore 15:00. Giudice Alessandra Lulli. Professionista delegato alla vendita Dott. Walter Sillano - Email "walter.sillano@eassociato.com"; Tel. 0773368673. Custode Giudiziario Dott. Walter Sillano - Email "walter.sillano@eassociato.com"; Tel. 0773368673. Rif. Tribunale di Latina - Espropriazione immobiliare (cartabia) n. 291/2023

Superficie 243,00 mq
Vani 6,00
Bagni
Piano 0

Tipologia di vendita Giudiziaria
Modalità di vendita Asincrona telematica
Termine presentazione offerte 04/05/2026 ore 13:00
Data e ora inizio gara 05/05/2026 ore 15:00
Codice ID astegiudiziarie.it 4344901
6,00
243,00
0
€ 120.000

Ti interessa questa vendita?

north_east

Clicca qui per essere indirizzato alla scheda sul sito di provenienza

Bene di astegiudiziarie.it