highlight_off
Riferimento annuncio 319311 info

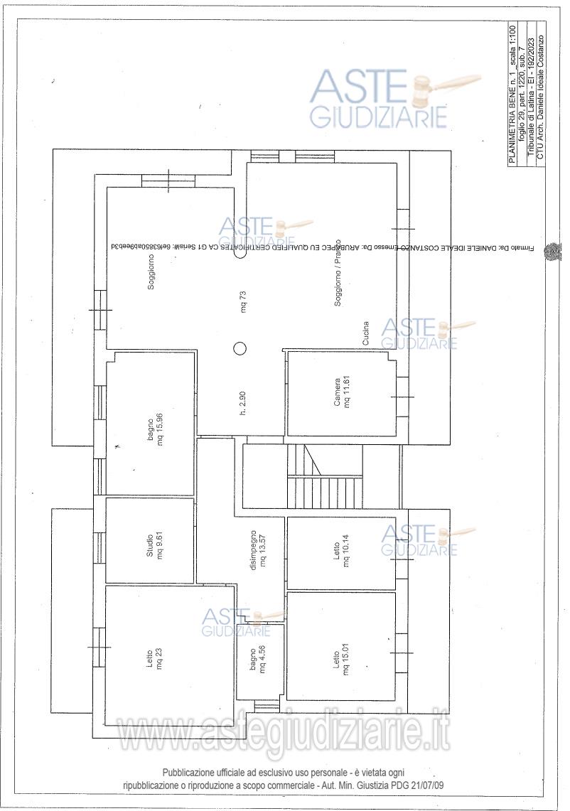
Appartamento Via Trento n. 137, interno 5, piano 2 e Via Olbia n. 8, piano terra, 04022 Fondi (LT)

10,00
287,00
2
2
€ 273.750
Vendita all'asta Senza incanto, con gara telematica asincrona - LOTTO UNICO: Appartamento ubicato in Fondi (LT) - Via Trento n. 137 interno 5, piano 2 e Magazzino ubicato in Fondi (LT) Via Olbia n. 8, piano terra. Prezzo base € 273.750,00 (offerta minima € 205.313,00). Data inizio operazioni di vendita: 20/01/2026 ore 15:00. Professionista delegato alla vendita Avv. Fabrizio Carlesimo - Email "avvocatofabriziocarlesimo@gmail.com"; Cell. 3281255780; Tel. 0773481361. Custode Giudiziario Avv. Fabrizio Carlesimo - Email "avvocatofabriziocarlesimo@gmail.com"; Cell. 3281255780; Tel. 0773481361. Rif. Tribunale di Latina - Espropriazione immobiliare (cartabia) n. 192/2023

Superficie 287,00 mq
Vani 10,00
Bagni 2
Piano 2

Tipologia di vendita Giudiziaria
Modalità di vendita Asincrona telematica
Termine presentazione offerte 01/01/1900 ore 00:00
Data e ora inizio gara 20/01/2026 ore 15:00
Codice ID astegiudiziarie.it 4339290
10,00
287,00
2
2
€ 273.750

Ti interessa questa vendita?

north_east

Clicca qui per essere indirizzato alla scheda sul sito di provenienza

Bene di astegiudiziarie.it