highlight_off
Riferimento annuncio 286324 info

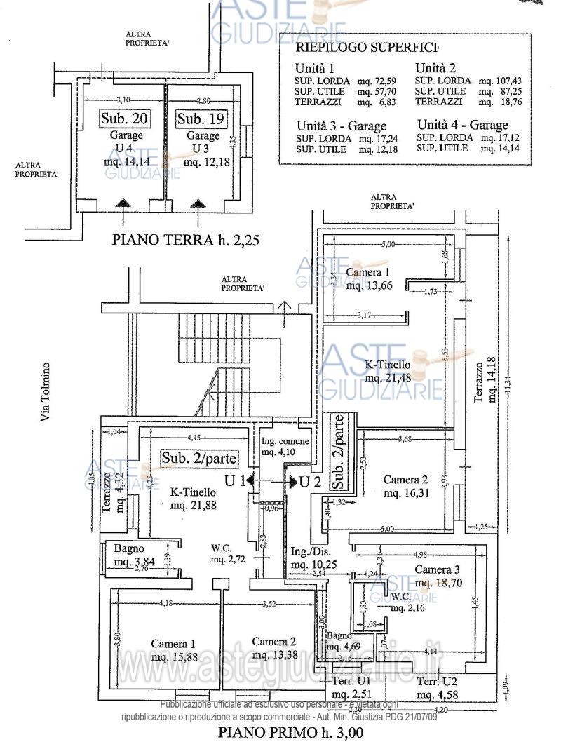
Appartamento Via Tolmino, 1, 06036 Foligno PG, Italia, 06034 Foligno (PG)

7,00
140,00
0
€ 75.092
Vendita all'asta Senza incanto, con gara telematica sincrona mista - LOTTO UNICO: FOLIGNO (PG) VIA TOLMINO N. 1 - Unità immobiliare ad uso abitativo, posta al piano primo di un edificio elevato su cinque piani fuori terra, con due garages ubicati al piano terra. Prezzo base € 75.092,40 (offerta minima € 56.319,30). Data vendita 06/03/2026 ore 15:00. Giudice Dott. Alberto Cappellini. Professionista delegato alla vendita Avv. Elena Galli - Email "elena.galli@gmail.com"; Tel. 0743224335. Custode Giudiziario Ivg Perugia - Email "visite@ivgumbria.com"; Tel. 0755913525. Rif. Tribunale di Spoleto - Esecuzione immobiliare post legge 80 n. 109/2016

Superficie 140,00 mq
Vani 7,00
Bagni
Piano 0

Tipologia di vendita Giudiziaria
Modalità di vendita Sincrona mista
Termine presentazione offerte 01/01/1900 ore 00:00
Data e ora inizio gara 06/03/2026 ore 15:00
Codice ID astegiudiziarie.it 4313371
7,00
140,00
0
€ 75.092

Ti interessa questa vendita?

north_east

Clicca qui per essere indirizzato alla scheda sul sito di provenienza

Bene di astegiudiziarie.it