highlight_off
Riferimento annuncio 294896 info

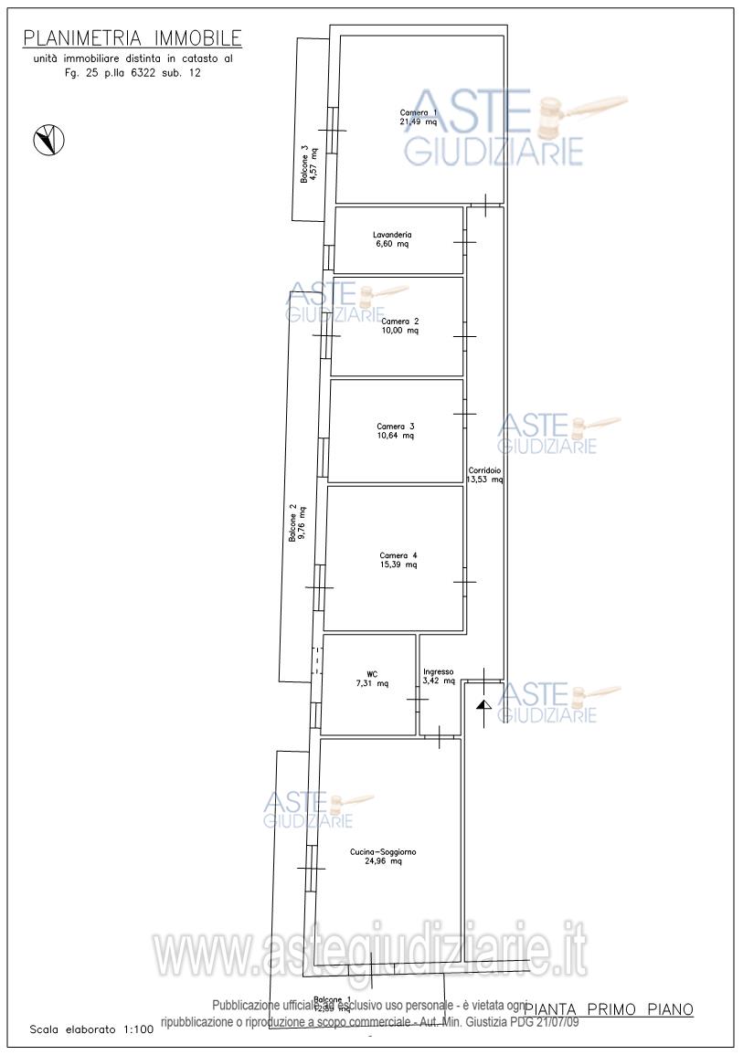
Appartamento Corso Vittorio Emanuele n. 194, 96014 Floridia (SR)

5,00
126,00
0
€ 46.406
Vendita all'asta Senza incanto, con gara telematica sincrona mista - LOTTO UNICO: appartamento posto al primo piano di un edificio condominiale sito in Floridia, Corso Vittorio Emanuele n.194. Prezzo base € 46.406,25 (offerta minima € 34.804,69). Data vendita 18/02/2026 ore 10:00. Professionista delegato alla vendita Avv. Igino La Rocca - Email "avv.iginolarocca@virgilio.it"; Cell. 3389169617; Tel. 0931091391. Custode Giudiziario Avv. Igino La Rocca - Email "avv.iginolarocca@virgilio.it"; Cell. 3389169617; Tel. 0931091391. Rif. Tribunale di Siracusa - Espropriazione immobiliare (cartabia) n. 312/2023

Superficie 126,00 mq
Vani 5,00
Bagni
Piano 0

Tipologia di vendita Giudiziaria
Modalità di vendita Sincrona mista
Termine presentazione offerte 17/02/2026 ore 12:00
Data e ora inizio gara 18/02/2026 ore 10:00
Codice ID astegiudiziarie.it 4319934
5,00
126,00
0
€ 46.406

Ti interessa questa vendita?

north_east

Clicca qui per essere indirizzato alla scheda sul sito di provenienza

Bene di astegiudiziarie.it