highlight_off
Riferimento annuncio 326338 info

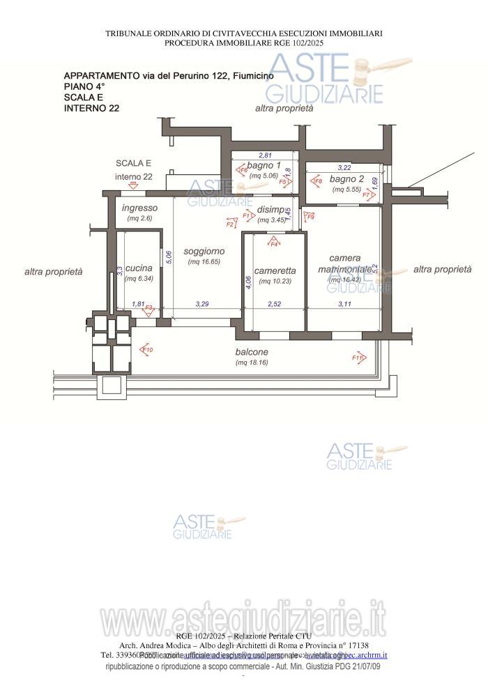
Appartamento Via del Perugino, 122, 00054 Fiumicino (RM)

5,00
101,00
4
€ 185.000
Vendita all'asta Senza incanto, con gara telematica asincrona - LOTTO UNICO: PIENA PROPRIETA’ appartamento posto al piano quarto di uno stabile a otto piani fuori terra e un garage situato al primo piano seminterrato (S1). L’appartamento si trova in Fiumicino (RM), via del Perugino n° 122, interno 22, scala E censito in detto Comune al foglio 734, particella 878, sub 199, zona cens. 001, categoria A2, classe 6, vani 5, mq 84, r.c.€ 813,42;. Prezzo base € 185.000,00 (offerta minima € 138.750,00). Data inizio operazioni di vendita: 10/04/2026 ore 11:00. Giudice Dott. Stefano Palmaccio. Professionista delegato alla vendita Avv. Angela Quercia - Email "avvocatoangelaquercia@gmail.com"; Cell. 3331679333. Custode Giudiziario Avv. Angela Quercia - Email "avvocatoangelaquercia@gmail.com"; Cell. 3331679333. Rif. Tribunale di Civitavecchia - Espropriazione immobiliare (cartabia) n. 102/2025

Superficie 101,00 mq
Vani 5,00
Bagni
Piano 4

Tipologia di vendita Giudiziaria
Modalità di vendita Asincrona telematica
Termine presentazione offerte 01/01/1900 ore 00:00
Data e ora inizio gara 10/04/2026 ore 11:00
Codice ID astegiudiziarie.it 4345196
5,00
101,00
4
€ 185.000

Ti interessa questa vendita?

north_east

Clicca qui per essere indirizzato alla scheda sul sito di provenienza

Bene di astegiudiziarie.it