highlight_off
Riferimento annuncio 223867 info

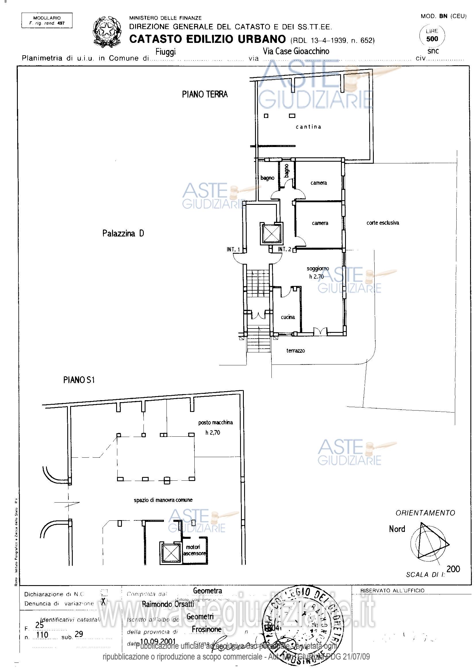
Appartamento Via Case Gioacchino, 03014 Fiuggi (FR)

6,00
148,10
1
0
€ 34.989
Vendita all'asta Senza incanto, con gara telematica asincrona - LOTTO 1: Appartamento al piano seminterrato e terra. Prezzo base € 34.989,00 (offerta minima € 26.242,00). Data inizio operazioni di vendita: 26/11/2025 ore 11:00. Giudice Simona Di Nicola. Professionista delegato alla vendita Dott. Giuseppe Vinciguerra - Email "pinovinciguerra@gmail.com"; Tel. 07751860572. Custode Giudiziario Dott. Giuseppe Vinciguerra - Email "pinovinciguerra@gmail.com"; Tel. 07751860572. Rif. Tribunale di Frosinone - Esecuzione immobiliare post legge 80 n. 92/2020

Superficie 148,10 mq
Vani 6,00
Bagni 1
Piano 0

Tipologia di vendita Giudiziaria
Modalità di vendita Asincrona telematica
Termine presentazione offerte 01/01/1900 ore 00:00
Data e ora inizio gara 26/11/2025 ore 11:00
Codice ID astegiudiziarie.it 4269741
6,00
148,10
1
0
€ 34.989

Ti interessa questa vendita?

north_east

Clicca qui per essere indirizzato alla scheda sul sito di provenienza

Bene di astegiudiziarie.it