highlight_off
Riferimento annuncio 332692 info

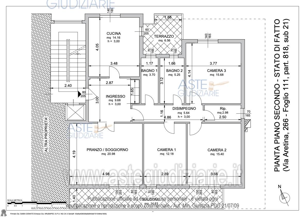
Appartamento Via Aretina, 266, 50136 Firenze FI, Italia, 50100 Firenze (FI)

0
€ 310.000
Vendita all'asta Senza incanto, con gara telematica sincrona - LOTTO UNICO: Piena proprietà di porzione di un più ampio fabbricato condominiale con accesso da Via Aretina a mezzo di piazzale condominiale e più precisamente appartamento ad uso civile abitazione ubicato al piano secondo e composto da ampio ingresso, cucina con terrazza, vano adibito a pranzo/soggiorno, disimpegno, due camere matrimoniali, una camera singola, due bagni, ripostiglio e balcone nella parte tergale. Prezzo base € 310.000,00 (offerta minima € 232.500,00). Data vendita 01/07/2026 ore 14:00. Professionista delegato alla vendita: Avv. Elisabetta Guarnieri - Email "guarnieri.elisabetta@gmail.com"; Tel. 055/473590. Custode Giudiziario: Istituto Vendite Giudiziarie Di Firenze - Email "prenota.fi@isveg.it"; Tel. 055/2340830. Rif. Tribunale di Firenze - Contenzioso civile n. 12189/2025

Superficie mq
Vani
Bagni
Piano 0

Tipologia di vendita Giudiziaria
Modalità di vendita Sincrona telematica
Termine presentazione offerte 01/01/1900 ore 00:00
Data e ora inizio gara 01/07/2026 ore 14:00
Codice ID astegiudiziarie.it 4349835
0
€ 310.000

Ti interessa questa vendita?

north_east

Clicca qui per essere indirizzato alla scheda sul sito di provenienza

Bene di astegiudiziarie.it