highlight_off
Riferimento annuncio 315653 info

Appartamento VIA VENEZIA 6/A, 00065 Fiano Romano (RM)

5,50
342,49
2
0
€ 374.400
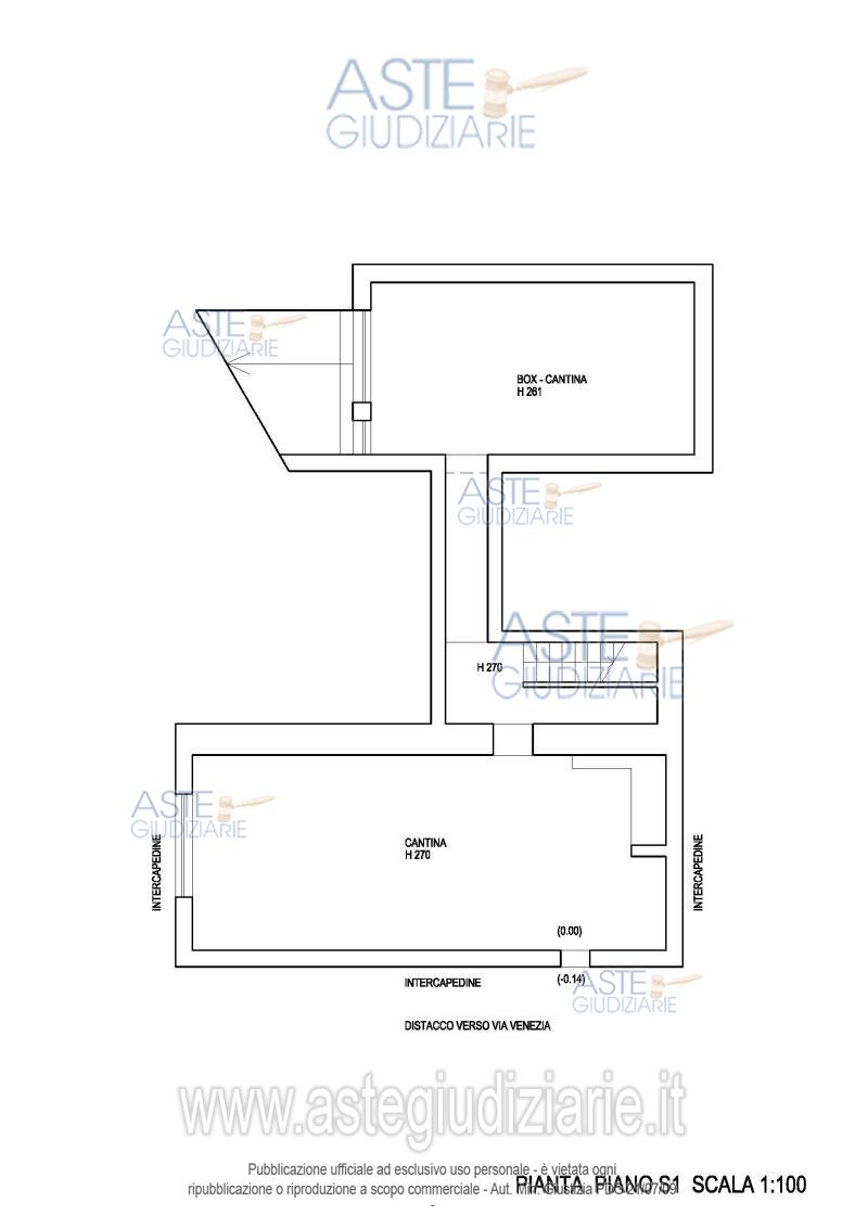
Vendita all'asta Senza incanto, con gara telematica asincrona - LOTTO UNICO: Quota pari a 1/1 del diritto di proprietà su villetta ubicata a Fiano Romano (RM) - Via Venezia 6/A, piano S1/T/1, su due livelli fuori terra più seminterrato. L'edificio è circondato da giardino nel quale insistono una tettoia in legno adibita a parcheggio di n. 4 autoveicoli. Il tutto per complessivi 343 mq. di superficie convenzionale. Prezzo base € 374.400,00 (offerta minima € 280.800,00). Data inizio operazioni di vendita: 20/05/2026 ore 10:00. Giudice Dott. Romolo Ciufolini. Professionista delegato alla vendita Dott. Marika Christopulos. Custode Giudiziario Ivg Di Roma Srl - Email "pvp@visiteivgroma.it"; Tel. 0689569801. Rif. Tribunale di Roma - Esecuzione immobiliare post legge 80 n. 105423/1999

Superficie 342,49 mq
Vani 5,50
Bagni 2
Piano 0

Tipologia di vendita Giudiziaria
Modalità di vendita Asincrona telematica
Termine presentazione offerte 01/01/1900 ore 00:00
Data e ora inizio gara 20/05/2026 ore 10:00
Codice ID astegiudiziarie.it 4333591
5,50
342,49
2
0
€ 374.400

Ti interessa questa vendita?

north_east

Clicca qui per essere indirizzato alla scheda sul sito di provenienza

Bene di astegiudiziarie.it