highlight_off
Riferimento annuncio 318876 info

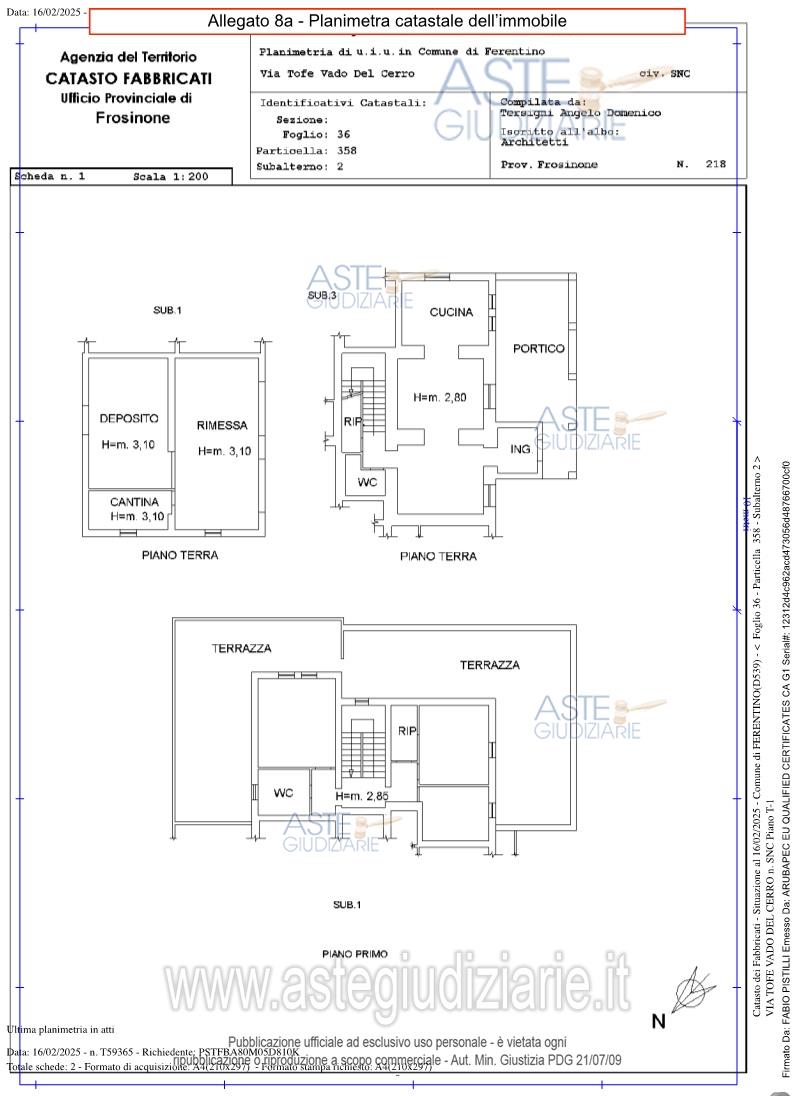
Appartamento Via Colle Rosati, 27/c, 03013 Ferentino (FR)

10,00
226,00
2
0
€ 81.080
Vendita all'asta Senza incanto, con gara telematica asincrona - LOTTO 1: Fabbricato per civile abitazione su due livelli fuori terra. Prezzo base € 81.080,00 (offerta minima € 60.810,00). Data inizio operazioni di vendita: 08/01/2026 ore 15:30. Giudice Simona Di Nicola. Professionista delegato alla vendita Avv. Luciana Cialei - Email "luciana.cialei@libero.it". Custode Giudiziario Avv. Luciana Cialei - Email "luciana.cialei@libero.it". Rif. Tribunale di Frosinone - Esecuzione immobiliare post legge 80 n. 117/2024

Superficie 226,00 mq
Vani 10,00
Bagni 2
Piano 0

Tipologia di vendita Giudiziaria
Modalità di vendita Asincrona telematica
Termine presentazione offerte 07/01/2026 ore 12:00
Data e ora inizio gara 08/01/2026 ore 15:30
Codice ID astegiudiziarie.it 4339031
10,00
226,00
2
0
€ 81.080

Ti interessa questa vendita?

north_east

Clicca qui per essere indirizzato alla scheda sul sito di provenienza

Bene di astegiudiziarie.it