highlight_off
Riferimento annuncio 221661 info

Appartamento Via della Fiera, 85034 Fardella PZ, Italia, 85034 Fardella (PZ)

10,00
339,59
2
0
€ 18.329
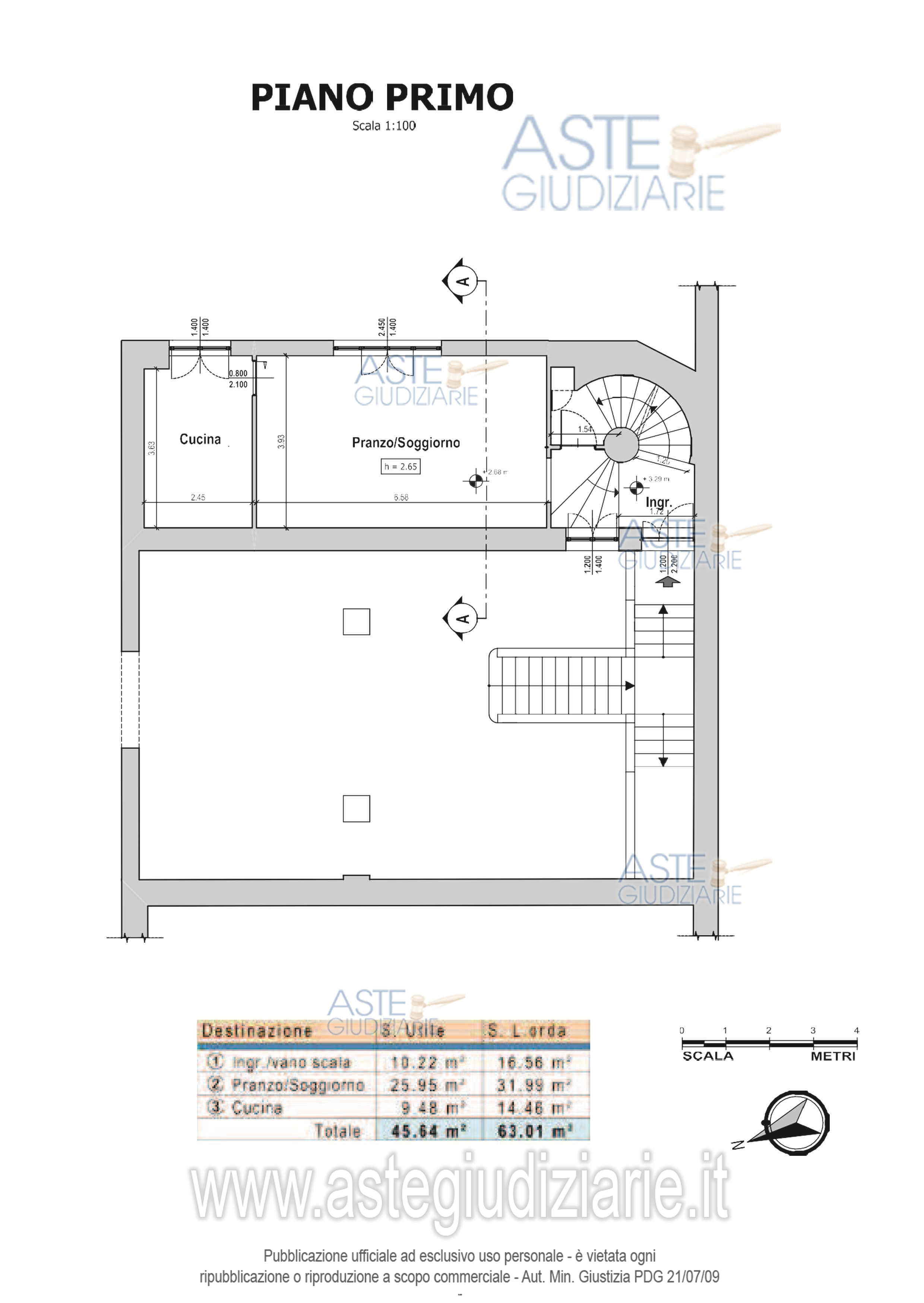
Vendita all'asta Senza incanto - LOTTO 2: Fabbricato adibito a civile abitazione, dalla superficie di 339,59 mq circa, composto da due piani più sottotetto. Prezzo base € 18.328,86 (offerta minima € 13.746,65). Data vendita 04/12/2025 ore 17:00. Professionista delegato alla vendita Avv. Giuseppe Sabella - Email "st.legalecioffi@gmail.com"; Tel. 097321770. Custode Giudiziario Avv. Giuseppe Sabella - Email "st.legalecioffi@gmail.com"; Tel. 097321770. Rif. Tribunale di Lagonegro - Esecuzione immobiliare n. 67/1997

Superficie 339,59 mq
Vani 10,00
Bagni 2
Piano 0

Tipologia di vendita Giudiziaria
Modalità di vendita Presso il venditore
Termine presentazione offerte 01/01/1900 ore 00:00
Data e ora inizio gara 04/12/2025 ore 17:00
Codice ID astegiudiziarie.it 4267525
10,00
339,59
2
0
€ 18.329

Ti interessa questa vendita?

north_east

Clicca qui per essere indirizzato alla scheda sul sito di provenienza

Bene di astegiudiziarie.it