highlight_off
Riferimento annuncio 299550 info

Appartamento Via Piave, 53, 02032 Fara in Sabina (RI)

1
€ 20.492
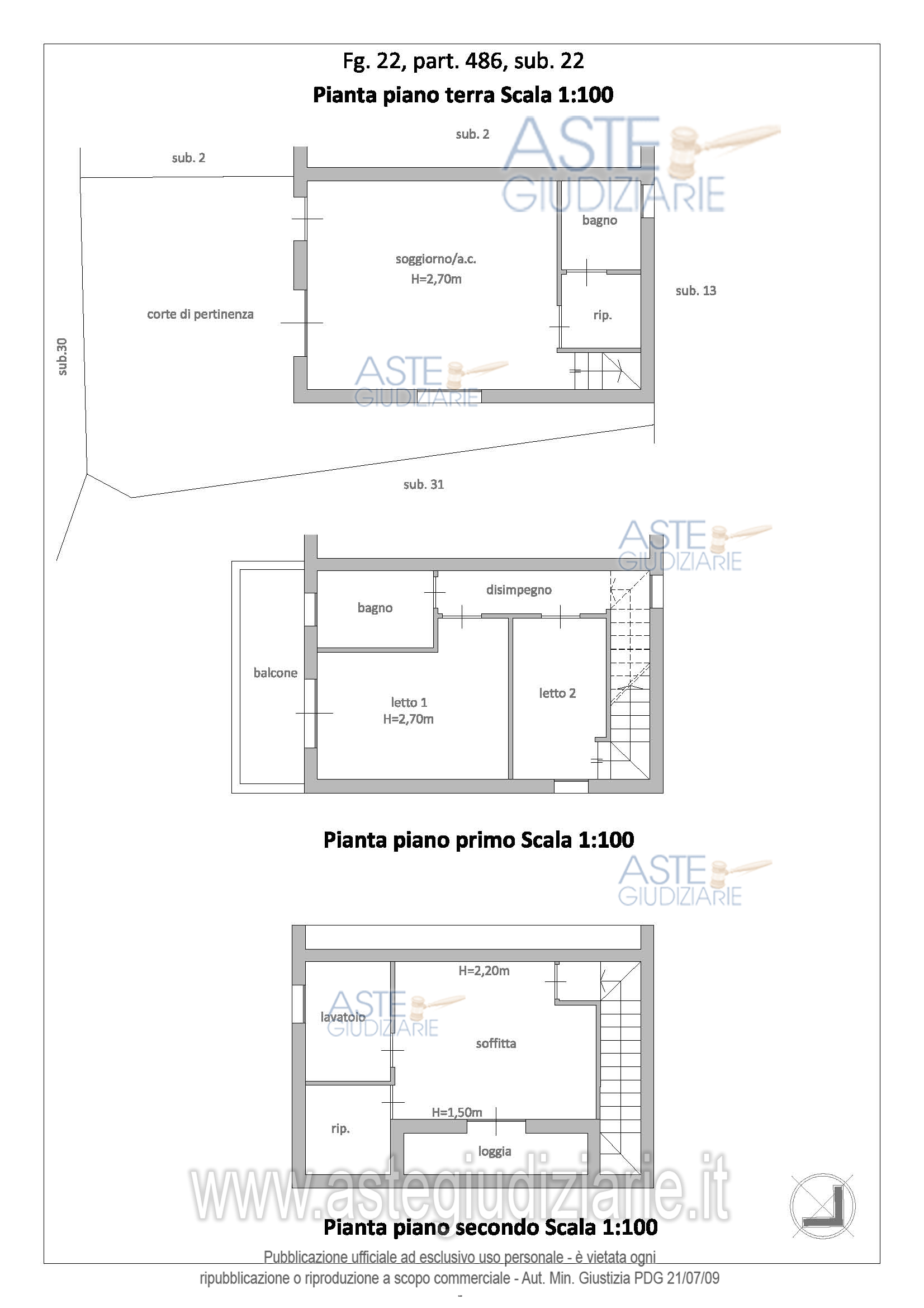
Vendita all'asta Senza incanto, con gara telematica asincrona - LOTTO 9: abitazione parzialmente allo stato di rustico al piano primo con soggiorno/angolo cottura, un disimpegno ed un bagno, e al piano secondo attraverso un disimpegno, una soffitta. un lavatoio ed un ripostiglio; balcone al piano primo ed una loggia al piano secondo. Superficie utile lorda complessiva di 44,00 mq per l'abitazione al piano primo, 33 mq per la soffitta, 7,00 mq per la loggia e 13,45 mq per il balcone al piano primo. Nel lotto risulta essere ricompreso il posto auto sub. 29. Prezzo base € 20.491,88 (offerta minima € 15.368,91). Data inizio operazioni di vendita: 12/11/2025 ore 09:30. Giudice Dott. Barbara Vicario. Professionista delegato alla vendita Avv. Francesca Blasi - Email "francesca@avvocatoblasi.it"; Cell. 3331710346; Tel. 0746204591. Custode Giudiziario Avv. Francesca Blasi - Email "francesca@avvocatoblasi.it"; Tel. 0746204591. Rif. Tribunale di Rieti - Espropriazione immobiliare (cartabia) n. 79/2023

Superficie mq
Vani
Bagni
Piano 1

Tipologia di vendita Giudiziaria
Modalità di vendita Asincrona telematica
Termine presentazione offerte 01/01/1900 ore 00:00
Data e ora inizio gara 12/11/2025 ore 09:30
Codice ID astegiudiziarie.it 4323433
1
€ 20.492

Ti interessa questa vendita?

north_east

Clicca qui per essere indirizzato alla scheda sul sito di provenienza

Bene di astegiudiziarie.it