highlight_off
Riferimento annuncio 299549 info

Appartamento Via Piave, 53, 02032 Fara in Sabina (RI)

3,50
45,00
1
€ 14.112
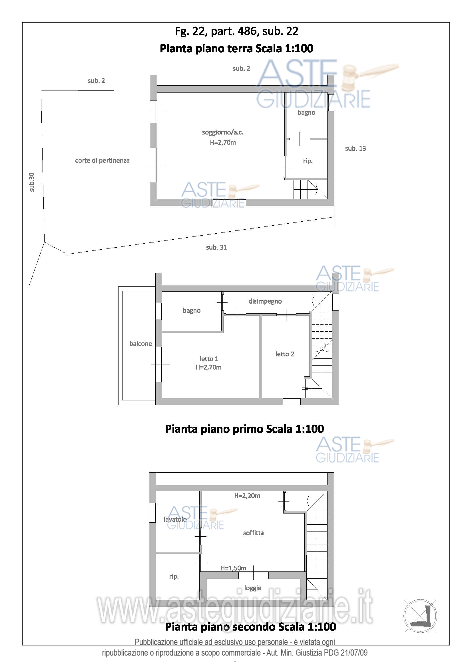
Vendita all'asta Senza incanto, con gara telematica asincrona - LOTTO 8: abitazione allo stato di rustico al piano primo con soggiorno/angolo cottura, disimpegno e bagno, e al piano secondo attraverso un disimpegno, soffitta. un lavatoio e ripostiglio; balcone al piano primo ed una loggia al piano secondo. Superficie utile lorda complessiva di 45,00 mq per l'abitazione al piano primo, 29 mq per la soffitta, 7,00 mq per la loggia e 13,00 mq per il balcone al piano primo. Nel lotto risultano essere ricompresi il posto auto sub. 28 e l’ente urbano sub. 35. Prezzo base € 14.111,73 (offerta minima € 10.583,80). Data inizio operazioni di vendita: 04/02/2026 ore 09:30. Giudice Dott. Barbara Vicario. Professionista delegato alla vendita Avv. Francesca Blasi - Email "francesca@avvocatoblasi.it"; Cell. 3331710346; Tel. 0746204591. Custode Giudiziario Avv. Francesca Blasi - Email "francesca@avvocatoblasi.it"; Tel. 0746204591. Rif. Tribunale di Rieti - Espropriazione immobiliare (cartabia) n. 79/2023

Superficie 45,00 mq
Vani 3,50
Bagni
Piano 1

Tipologia di vendita Giudiziaria
Modalità di vendita Asincrona telematica
Termine presentazione offerte 01/01/1900 ore 00:00
Data e ora inizio gara 04/02/2026 ore 09:30
Codice ID astegiudiziarie.it 4323432
3,50
45,00
1
€ 14.112

Ti interessa questa vendita?

north_east

Clicca qui per essere indirizzato alla scheda sul sito di provenienza

Bene di astegiudiziarie.it