highlight_off
Riferimento annuncio 299544 info

Appartamento Via Piave, 53, 02032 Fara in Sabina (RI)

2,00
44,00
0
€ 10.382
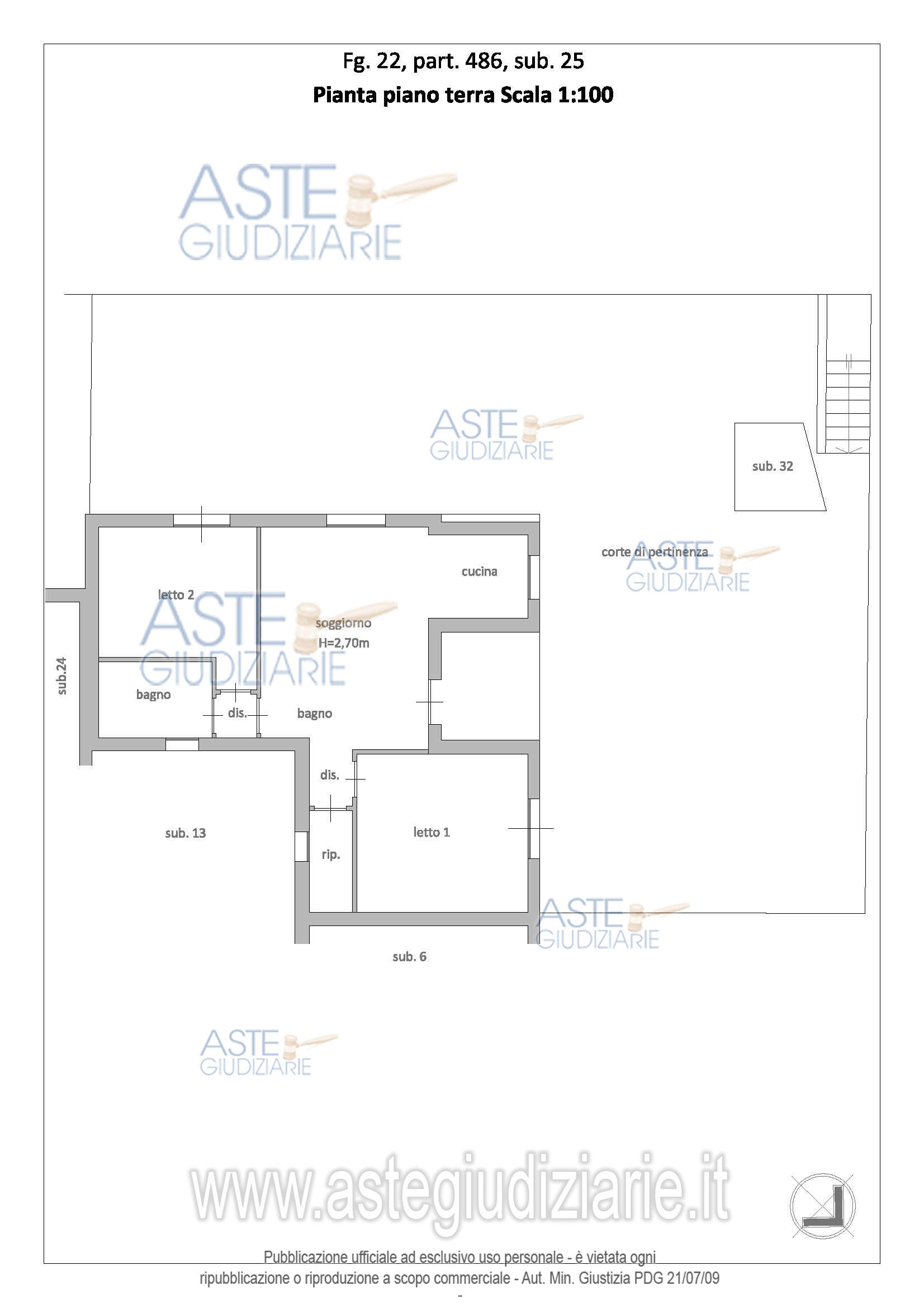
Vendita all'asta Senza incanto, con gara telematica asincrona - LOTTO 3: unità immobiliare monolocale ad uso abitativo distribuita allo stato di rustico funzionalmente distribuita interamente al piano terra attraverso un soggiorno/angolo cottura/letto, un disimpegno ed un bagno; completa la descrizione una corte esclusiva cui si accede per il tramite di un cancelletto pedonale aperto su uno spazio di passaggio comune. Il tutto per una superficie utile lorda complessiva di 44,00 mq per l'abitazione e di 38,00mq per la corte pertinenziale esclusiva. Prezzo base € 10.382,35 (offerta minima € 7.786,76). Data inizio operazioni di vendita: 04/02/2026 ore 09:30. Giudice Dott. Barbara Vicario. Professionista delegato alla vendita Avv. Francesca Blasi - Email "francesca@avvocatoblasi.it"; Cell. 3331710346; Tel. 0746204591. Custode Giudiziario Avv. Francesca Blasi - Email "francesca@avvocatoblasi.it"; Tel. 0746204591. Rif. Tribunale di Rieti - Espropriazione immobiliare (cartabia) n. 79/2023

Superficie 44,00 mq
Vani 2,00
Bagni
Piano 0

Tipologia di vendita Giudiziaria
Modalità di vendita Asincrona telematica
Termine presentazione offerte 01/01/1900 ore 00:00
Data e ora inizio gara 04/02/2026 ore 09:30
Codice ID astegiudiziarie.it 4323427
2,00
44,00
0
€ 10.382

Ti interessa questa vendita?

north_east

Clicca qui per essere indirizzato alla scheda sul sito di provenienza

Bene di astegiudiziarie.it