highlight_off
Riferimento annuncio 307322 info

Appartamento Via Direttissima n.09, 81030 Falciano del Massico (CE)

4,00
198,72
0
€ 28.407
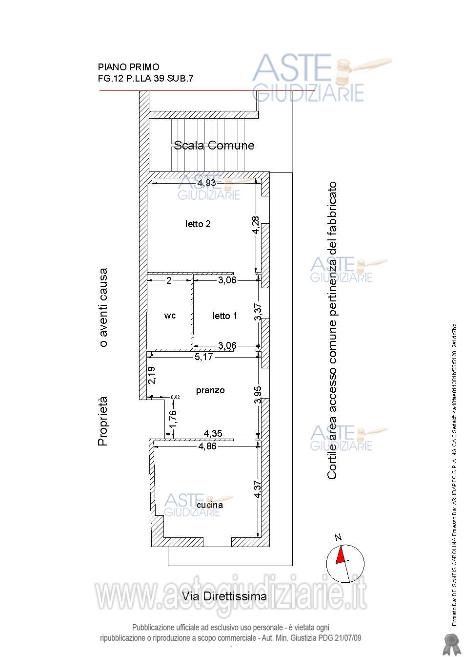
Vendita all'asta Senza incanto - LOTTO UNICO: Piena e Intera proprietà n.02 appartamenti facenti parte fabbricato in Falciano del Massico (CE), via Direttissima n.09. 1) appartamento al PT: ingresso, zona pranzo, cucina, due camere da letto, corridoio, un bagno; 2) appartamento P1: cucina, zona pranzo, due camere da letto, corridoio, un bagno. Immobili in pessimo stato di manutenzione, disabitati. Si invita attenta lettura perizia di stima, pubblicata unitamente avviso di vendita, in particolare stato dei luoghi e conformità urbanistica e catastale. Prezzo base € 28.407,00 (offerta minima € 21.306,00). Data vendita 03/03/2026 ore 09:30. Giudice Elmelinda Mercurio. Professionista delegato alla vendita Dott. Claudio Cesaro - Email "claudiocesaro@cesarorossellicommercialisti.it"; Cell. 3356874141; Tel. 3356874141. Custode Giudiziario Dott. Claudio Cesaro - Email "claudiocesaro@cesarorossellicommercialisti.it"; Cell. 3356874141; Tel. 3356874141. Rif. Tribunale di Santa Maria Capua Vetere - Esecuzione immobiliare post legge 80 n. 36/2024

Superficie 198,72 mq
Vani 4,00
Bagni
Piano 0

Tipologia di vendita Giudiziaria
Modalità di vendita Presso il venditore
Termine presentazione offerte 01/01/1900 ore 00:00
Data e ora inizio gara 03/03/2026 ore 09:30
Codice ID astegiudiziarie.it 4329515
4,00
198,72
0
€ 28.407

Ti interessa questa vendita?

north_east

Clicca qui per essere indirizzato alla scheda sul sito di provenienza

Bene di astegiudiziarie.it