highlight_off
Riferimento annuncio 286261 info

Appartamento Via Albaretto, 12010 Entracque CN, Italia, 12010 Entracque (CN)

4,00
91,00
0
€ 102.000
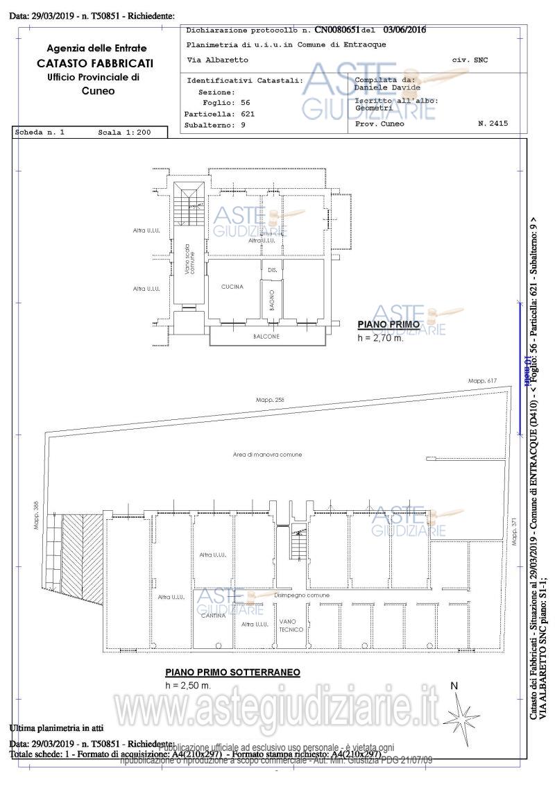
Vendita all'asta Senza incanto - LOTTO 105: Bene n. 105: Piena proprietà di appartamento residenziale, costruito da nuovo, con stato di avanzamento pari a circa 77%, composto da: soggiorno cucina (di 18,60 mq), una camera (di 14,65 mq), un bagno (di 4,60 mq) ed un disimpegno (di 2,50 mq), al piano primo. Completa la costruzione un balcone (di 12,80 mq) ed una cantina al piano interrato. Libera su due lati. Bene n. 111: Piena proprietà di autorimessa di mq 34,00, sita al pianto interrato. Prezzo base € 102.000,00 (offerta minima € 102.000,00). Data vendita 02/12/2025 ore 13:00. Professionista delegato alla vendita Dott. Giovanni Imberti - Tel. 0173 759301. Rif. Tribunale di Cuneo - Nuovo concordato preventivo n. 11/2018

Superficie 91,00 mq
Vani 4,00
Bagni
Piano 0

Tipologia di vendita Giudiziaria
Modalità di vendita Presso il venditore
Termine presentazione offerte 01/01/1900 ore 00:00
Data e ora inizio gara 02/12/2025 ore 13:00
Codice ID astegiudiziarie.it 4313285
4,00
91,00
0
€ 102.000

Ti interessa questa vendita?

north_east

Clicca qui per essere indirizzato alla scheda sul sito di provenienza

Bene di astegiudiziarie.it