highlight_off
Riferimento annuncio 332272 info

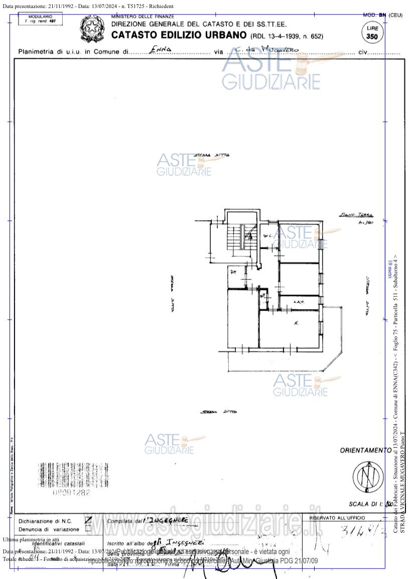
Appartamento Strada Vicinale Mugavero 883, 94100 Enna (EN)

60,00
123,00
0
€ 63.330
Vendita all'asta Senza incanto, con gara telematica sincrona mista - LOTTO 1: Appartamento ubicato al piano terra facente parte di un fabbricato sito in Enna strada vicinale Mugavero n. 883, distinto al Catasto Fabbricati del Comune di Enna al foglio 75 mappale 511 sub 4, c. Prezzo base € 63.329,94 (offerta minima € 47.497,46). Data vendita 09/07/2026 ore 09:30. Giudice Nunzio Noto. Professionista delegato alla vendita Avv. Mario Cantoni - Email "studiolegalecantoni@gmail.com". Custode Giudiziario Avv. Mario Cantoni - Email "studiolegalecantoni@gmail.com"; Tel. 093522826. Rif. Tribunale di Enna - Espropriazione immobiliare (cartabia) n. 40/2024

Superficie 123,00 mq
Vani 60,00
Bagni
Piano 0

Tipologia di vendita Giudiziaria
Modalità di vendita Sincrona mista
Termine presentazione offerte 01/01/1900 ore 00:00
Data e ora inizio gara 09/07/2026 ore 09:30
Codice ID astegiudiziarie.it 4349861
60,00
123,00
0
€ 63.330

Ti interessa questa vendita?

north_east

Clicca qui per essere indirizzato alla scheda sul sito di provenienza

Bene di astegiudiziarie.it