highlight_off
Riferimento annuncio 272426 info

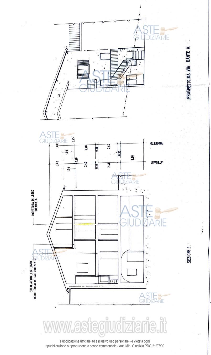
Appartamento VIA DANTE ALIGHIERI N. 8 CAT.N. 6, 24060 Endine Gaiano (BG)

3,50
79,00
0
€ 11.391
Vendita all'asta Senza incanto, con gara telematica asincrona - LOTTO UNICO: Appartamento con cantina SU PIU' PIANI, SOGGIORNO/ANGOLO COTTURA E PICCOLO DISIMPEGNO CHE CONDUCE ALLA CAMERA ED AL UNICO BAGNO PRESENTE. NEL DISIMPEGNO UNA SCALA A CHIOCCIOLA INTERNA CONDUCE AL LOCALE DESTINATO A RIPOSTIGLIO PIANO SECONDO POSTO NEL SOTTOTETTO CON PICCOLA FINESTRA CON AFFACCIO SUL SOGGIORNO; SEMPRE SULLO STESSO PIANO E' UBICATA UNA SOFFITTA POCO PRATICABILE CON TETTO INCLINATO Superficie complessiva di circa mq 130,00 E' posto al piano: S1, T, 1, 2 L'edificio è stato costruito nel: ANTE 67. Prezzo base € 11.390,60 (offerta minima € 8.543,00). Data inizio operazioni di vendita: 28/01/2026 ore 10:00. Giudice Luca Fuzio. Professionista delegato alla vendita Avv. Elisabetta Maestrini - Email "elisabetta.maestrini@gmail.com"; Tel. 035213033. Custode Giudiziario Claudia Mariangela Campo - Email "avv.claudiacampo@studiolegalecampo.com"; Tel. 0354491162. Rif. Tribunale di Bergamo - Espropriazione immobiliare (cartabia) n. 453/2023

Superficie 79,00 mq
Vani 3,50
Bagni
Piano 0

Tipologia di vendita Giudiziaria
Modalità di vendita Asincrona telematica
Termine presentazione offerte 27/01/2026 ore 12:00
Data e ora inizio gara 28/01/2026 ore 10:00
Codice ID astegiudiziarie.it 4302398
3,50
79,00
0
€ 11.391

Ti interessa questa vendita?

north_east

Clicca qui per essere indirizzato alla scheda sul sito di provenienza

Bene di astegiudiziarie.it