Riferimento annuncio 308534
        
    
    Appartamento Via bertanza 22, 25015 Desenzano del Garda (BS)
                
                0
            
        
€ 270.405    
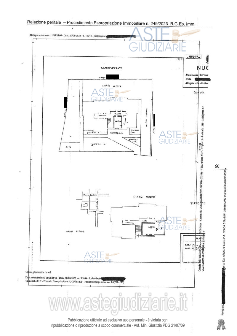
                Vendita all'asta Senza incanto, con gara telematica asincrona - LOTTO 1:  Appartamento trilocale al piano rialzato con locale cantina, locale a uso soffitta e autorimessa . Prezzo base € 270.405,00 (offerta minima € 202.803,75). Data inizio operazioni di vendita: 11/12/2025 ore 12:00. Giudice Angelina Baldissera. Professionista delegato alla vendita Avv. Nicola Tardanico - Email "nicola.tardanico@studiogoriominervini.it". Custode Giudiziario Avv. Nicola Tardanico - Email "nicola.tardanico@studiogoriominervini.it".  Rif. Tribunale di Brescia - Espropriazione immobiliare (cartabia) n. 249/2023
            
   
| Superficie | mq | 
|---|---|
| Vani | |
| Bagni | |
| Piano | 0 | 
| Tipologia di vendita | Giudiziaria | 
|---|---|
| Modalità di vendita | Asincrona telematica | 
| Termine presentazione offerte | 01/01/1900 ore 00:00 | 
| Data e ora inizio gara | 11/12/2025 ore 12:00 | 
 
                         
                         
                         
                         
                         
                         
                         
                         
                         
                         
                         
                         
                        