highlight_off
Riferimento annuncio 317238 info

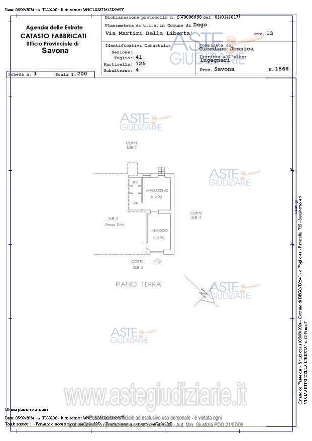
Appartamento Via Martiri della Libertà, 11, 17058 Dego SV, Italia, 17058 Dego (SV)

0
€ 20.100
Vendita all'asta Senza incanto, con gara telematica sincrona mista - LOTTO 4: IMMOBILE RESIDENZIALE E NEGOZIO QUATA 2/3. Prezzo base € 20.100,00 (offerta minima € 20.100,00). Data vendita 16/12/2025 ore 14:00. Rif. Tribunale di Genova - Liquidazione controllata(cci) n. 42/2023

Superficie mq
Vani
Bagni
Piano 0

Tipologia di vendita Giudiziaria
Modalità di vendita Sincrona mista
Termine presentazione offerte 13/12/2025 ore 12:00
Data e ora inizio gara 16/12/2025 ore 14:00
Codice ID astegiudiziarie.it 4337177
0
€ 20.100

Ti interessa questa vendita?

north_east

Clicca qui per essere indirizzato alla scheda sul sito di provenienza

Bene di astegiudiziarie.it