highlight_off
Riferimento annuncio 221932 info

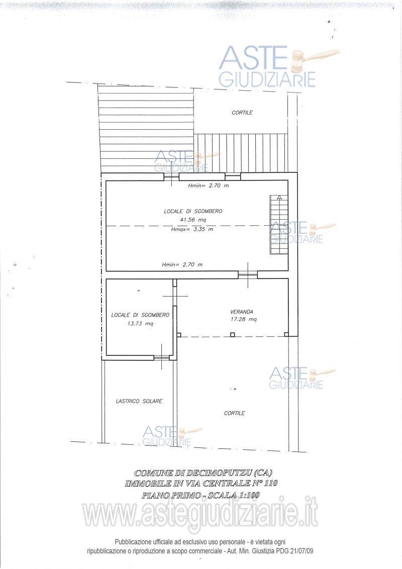
Appartamento Via Centrale n.110, 09010 Decimoputzu (SU)

6,50
165,00
0
€ 18.605
Vendita all'asta Senza incanto, con gara telematica asincrona - LOTTO UNICO: immobile censito al N.C.E.U., Fg. 25, mapp. 135, sub 2, piano T-1, Cat A/2;. Prezzo base € 18.605,00 (offerta minima € 13.954,00). Data inizio operazioni di vendita: 18/11/2025 ore 12:00. Giudice Francesco De Giorgi. Professionista delegato alla vendita Dott. Marco Ferri - Email "studioferrima@tiscali.it"; Tel. 070669566. Custode Giudiziario Ivg Cagliari - Email "ivg.visiteimmobili@tiscali.it"; Tel. 0702299036. Rif. Tribunale di Cagliari - Esecuzione immobiliare post legge 80 n. 465/2008

Superficie 165,00 mq
Vani 6,50
Bagni
Piano 0

Tipologia di vendita Giudiziaria
Modalità di vendita Asincrona telematica
Termine presentazione offerte 01/01/1900 ore 00:00
Data e ora inizio gara 18/11/2025 ore 12:00
Codice ID astegiudiziarie.it 177305
6,50
165,00
0
€ 18.605

Ti interessa questa vendita?

north_east

Clicca qui per essere indirizzato alla scheda sul sito di provenienza

Bene di astegiudiziarie.it