highlight_off
Riferimento annuncio 320490 info

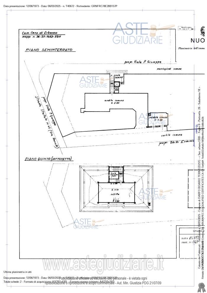
Appartamento Via Mantegna 2, 25047 Darfo Boario Terme (BS)

5,00
0
€ 139.000
Vendita all'asta Senza incanto, con gara telematica asincrona - LOTTO 3: Appartamento al quarto piano con solaio, deposito e autorimessa parte di complesso residenziale. Prezzo base € 139.000,00 (offerta minima € 104.250,00). Data inizio operazioni di vendita: 23/01/2026 ore 12:30. Giudice Dellesecuzione Giudice. Professionista delegato alla vendita Mariangela Zaglio. Custode Giudiziario Mariangela Zaglio - Email "info.bsimmobiliare@gmail.com". Rif. Tribunale di Brescia - Espropriazione immobiliare (cartabia) n. 485/2024

Superficie mq
Vani 5,00
Bagni
Piano 0

Tipologia di vendita Giudiziaria
Modalità di vendita Asincrona telematica
Termine presentazione offerte 01/01/1900 ore 00:00
Data e ora inizio gara 23/01/2026 ore 12:30
Codice ID astegiudiziarie.it 4340270
5,00
0
€ 139.000

Ti interessa questa vendita?

north_east

Clicca qui per essere indirizzato alla scheda sul sito di provenienza

Bene di astegiudiziarie.it