highlight_off
Riferimento annuncio 314615 info

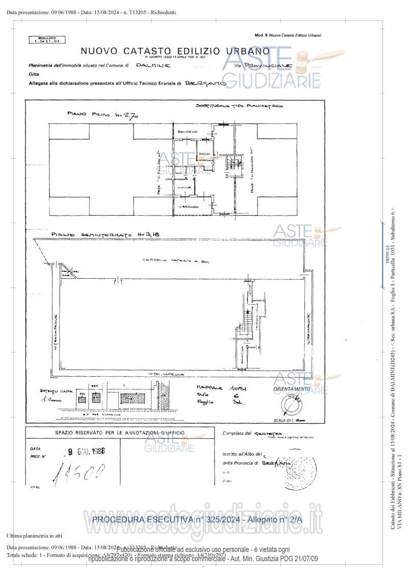
Appartamento Via Provinciale, 28, 24044 Dalmine BG, Italia, 24044 Dalmine (BG)

6,00
110,00
0
€ 82.000
Vendita all'asta Senza incanto, con gara telematica asincrona - LOTTO UNICO: Appartamento posto al piano primo con annessi cantina e box al piano interrato. Come da perizia, si precisa che l'abitazione è sita in Dalmine (BG), Via Provinciale n. 28 (già Via Provinciale per Milano) mentre il box è sito in Dalmine (BG), Via Carnovali sn (già Via Milano sn). Prezzo base € 82.000,00 (offerta minima € 61.500,00). Data inizio operazioni di vendita: 05/11/2025 ore 14:30. Giudice Dott. Luca Fuzio. Professionista delegato alla vendita Dott. Stefano Zucchelli - Tel. 035720890. Custode Giudiziario Avv. Angelo Austoni - Email "angelo.austoni@gmail.com"; Tel. 035219497. Rif. Tribunale di Bergamo - Espropriazione immobiliare (cartabia) n. 325/2024

Superficie 110,00 mq
Vani 6,00
Bagni
Piano 0

Tipologia di vendita Giudiziaria
Modalità di vendita Asincrona telematica
Termine presentazione offerte 01/01/1900 ore 00:00
Data e ora inizio gara 05/11/2025 ore 14:30
Codice ID astegiudiziarie.it 4335199
6,00
110,00
0
€ 82.000

Ti interessa questa vendita?

north_east

Clicca qui per essere indirizzato alla scheda sul sito di provenienza

Bene di astegiudiziarie.it