highlight_off
Riferimento annuncio 237403 info

Appartamento Via della Montagna, 64043 Crognaleto TE, Italia, 64043 Crognaleto (TE)

7,00
195,72
1
€ 16.893
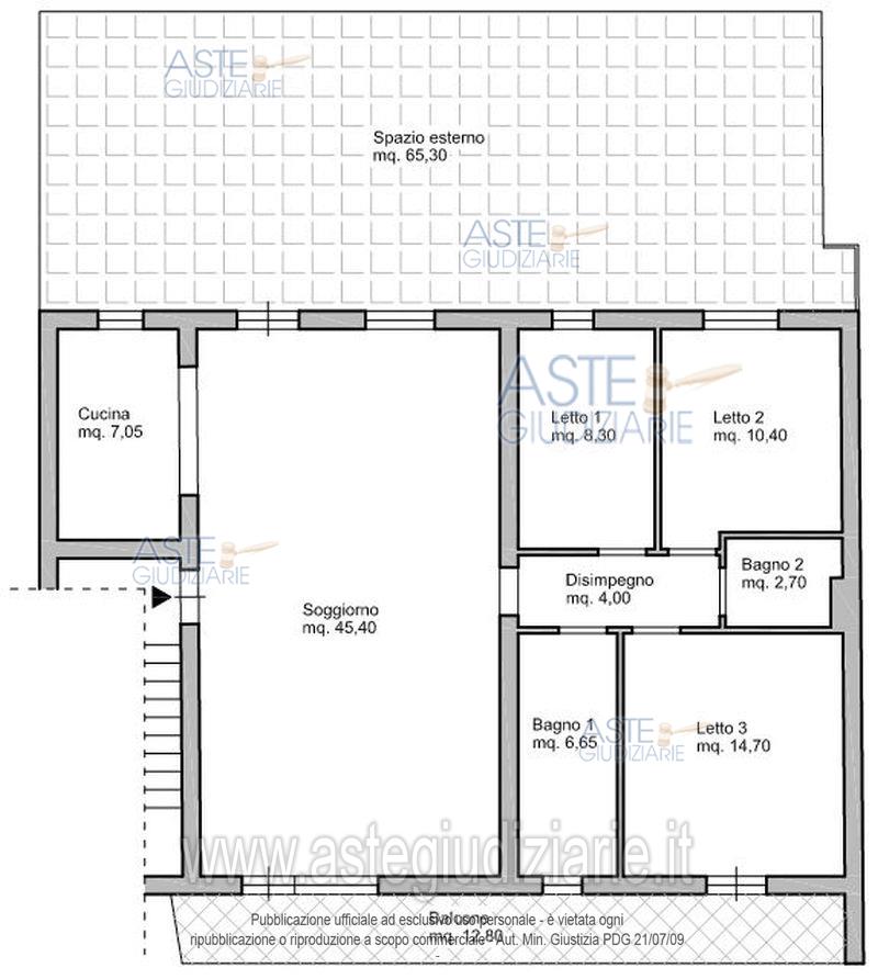
Vendita all'asta Senza incanto, con gara telematica asincrona - LOTTO 2: Appartamento ubicato a Crognaleto (TE) - Via della Montagna. Appartamento in Nerito di Crognaleto composto da soggiorno, cucina, disimpegno, bagno, tre camere, balcone e spazio esterno posteriore, oltre a garage posto al piano terra. Gli immobili vengono posti in vendita per il diritto di Proprietà (1/1). Prezzo base € 16.892,77 (offerta minima € 12.669,57). Data inizio operazioni di vendita: 23/03/2026 ore 10:00. Professionista delegato alla vendita Dott. Paolo Chiaffarelli - Email "procedure@studiochiaffarelli.it"; Tel. 0861415824. Custode Giudiziario Dott. Paolo Chiaffarelli - Email "procedure@studiochiaffarelli.it"; Tel. 0861415824. Rif. Tribunale di Teramo - Esecuzione immobiliare post legge 80 n. 306/2014

Superficie 195,72 mq
Vani 7,00
Bagni
Piano 1

Tipologia di vendita Giudiziaria
Modalità di vendita Asincrona telematica
Termine presentazione offerte 22/03/2026 ore 23:59
Data e ora inizio gara 23/03/2026 ore 10:00
Codice ID astegiudiziarie.it 358026
7,00
195,72
1
€ 16.893

Ti interessa questa vendita?

north_east

Clicca qui per essere indirizzato alla scheda sul sito di provenienza

Bene di astegiudiziarie.it