highlight_off
Riferimento annuncio 314773 info

Appartamento S.da Torino, 13044 Crescentino VC, Italia, 13044 Crescentino (VC)

4,50
74,74
0
€ 45.000
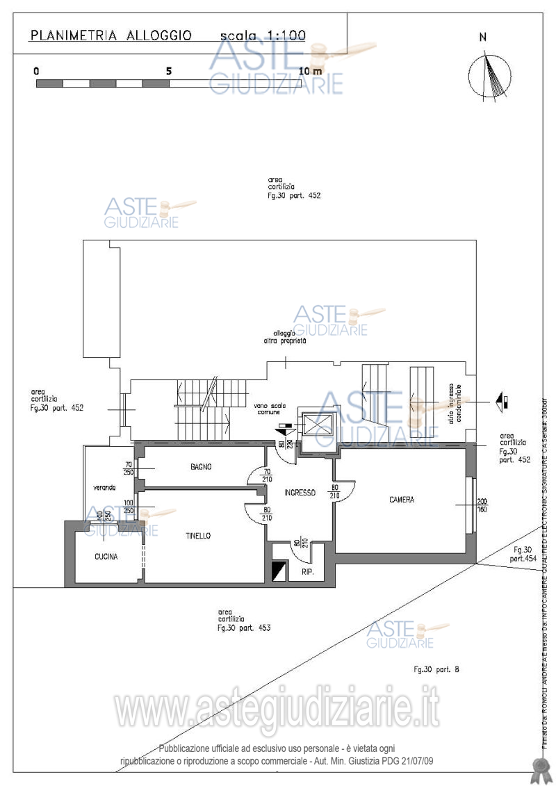
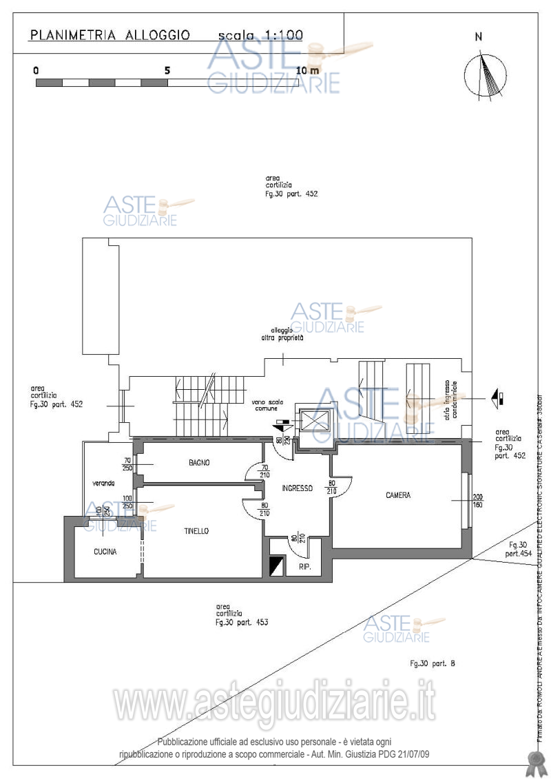
Vendita all'asta Senza incanto, con gara telematica asincrona - LOTTO UNICO: Alloggio a piano terreno (rialzato) con cantina a piano seminterrato in fabbricato condominiale di civile abitazione, accessibile da spazi comuni (vano scala, corridoio, cantine); oltre ad autorimessa a piano terreno in basso fabbricato posto nelle immediate vicinanze del fabbricato condominiale. Prezzo base € 45.000,00 (offerta minima € 33.750,00). Data inizio operazioni di vendita: 25/02/2026 ore 16:00. Professionista delegato alla vendita Avv. Loredana Barresi - Email "loredana.barresi@avvocaticasale.it"; Tel. 0142452307. Custode Giudiziario Avv. Loredana Barresi - Email "loredana.barresi@avvocaticasale.it"; Tel. 0142452307. Rif. Tribunale di Vercelli - Espropriazione immobiliare (cartabia) n. 178/2024

Superficie 74,74 mq
Vani 4,50
Bagni
Piano 0

Tipologia di vendita Giudiziaria
Modalità di vendita Asincrona telematica
Termine presentazione offerte 01/01/1900 ore 00:00
Data e ora inizio gara 25/02/2026 ore 16:00
Codice ID astegiudiziarie.it 4334153
4,50
74,74
0
€ 45.000

Ti interessa questa vendita?

north_east

Clicca qui per essere indirizzato alla scheda sul sito di provenienza

Bene di astegiudiziarie.it