highlight_off
Riferimento annuncio 297952 info

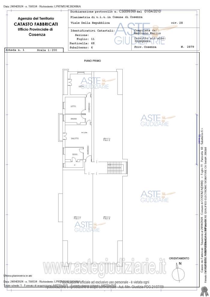
Appartamento Viale della Repubblica, 54, 87100 Cosenza (CS)

1
€ 65.100
Vendita all'asta Senza incanto, con gara telematica sincrona mista - LOTTO 0: Appartamento al piano 1, con soggiorno cucina, ripostiglio e climatizzazione; corridoio che porta alla zona notte con 2 camere da letto, 2 ripostigli ricavati dal cartongesso e bagno con vasca-doccia idromassaggio. In buono stato. Si accede tramite portone condominiale e non è dotato di ascensore. Ha spese condominiali arretrate e l’aggiudicatario risponde per gli ultimi due anni, l’importo annuo attualmente è pari ad € 444,00. Sup. lorda interna di ca. 109,41 mq e balconi di ca. 10,34 mq. Prezzo base € 65.100,00 (offerta minima € 48.830,00). Data vendita 10/02/2026 ore 10:30. Giudice Dott. Assunta Gioia. Professionista delegato alla vendita Dott. Emanuela Iaccino - Email "emanuela.iaccino@alice.it"; Tel. 3204617639. Custode Giudiziario Dott. Emanuela Iaccino - Email "emanuela.iaccino@alice.it"; Tel. 3204617639. Rif. Tribunale di Cosenza - Espropriazione immobiliare (cartabia) n. 29/2024

Superficie mq
Vani
Bagni
Piano 1

Tipologia di vendita Giudiziaria
Modalità di vendita Sincrona mista
Termine presentazione offerte 09/02/2026 ore 12:00
Data e ora inizio gara 10/02/2026 ore 10:30
Codice ID astegiudiziarie.it 4318786
1
€ 65.100

Ti interessa questa vendita?

north_east

Clicca qui per essere indirizzato alla scheda sul sito di provenienza

Bene di astegiudiziarie.it