Riferimento annuncio 295462
        
    
    Appartamento via dei Mille, 46/A, 87100 Cosenza (CS)
                
                3
            
        
€ 60.800    
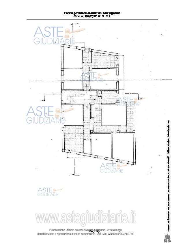
                Vendita all'asta Senza incanto, con gara telematica sincrona mista - LOTTO 0:  Appartamento al piano terzo di un fabbricato per civile abitazione, composto ingresso, studio con balcone, un unico ambiente adibito a soggiorno-angolo cottura-pranzo, disimpegno, un bagno, una camera da letto con balcone. Altezza pari a 3,00 m e superficie calpestabile interna pari a 70 mq a cui si aggiungono 5,5 mq di balconi. La superficie lorda dell’appartamento è di circa 80 mq. Prezzo base € 60.800,00 (offerta minima € 45.600,00). Data vendita 15/01/2026 ore 11:30. Giudice Dott. Assunta Gioia. Professionista delegato alla vendita Dott. Adriana Bajamonte - Email "abajamonte@gmail.com"; Tel. 3356300362. Custode Giudiziario Dott. Adriana Bajamonte - Email "abajamonte@gmail.com"; Tel. 3356300362.  Rif. Tribunale di Cosenza - Esecuzione immobiliare post legge 80 n. 157/2022
            
   
| Superficie | mq | 
|---|---|
| Vani | |
| Bagni | |
| Piano | 3 | 
| Tipologia di vendita | Giudiziaria | 
|---|---|
| Modalità di vendita | Sincrona mista | 
| Termine presentazione offerte | 01/01/1900 ore 00:00 | 
| Data e ora inizio gara | 15/01/2026 ore 11:30 | 
 
                         
                         
                         
                         
                         
                         
                         
                         
                         
                         
                         
                         
                         
                         
                         
                         
                         
                         
                         
                         
                         
                         
                         
                         
                        