highlight_off
Riferimento annuncio 318430 info

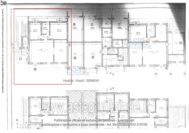
Appartamento Case Sparse Burcinella, 220, 52044 Fratta-Santa Caterina AR, Italia, 52044 Cortona (AR)

0
€ 115.000
Vendita all'asta Senza incanto, con gara telematica sincrona mista - LOTTO UNICO: Diritto di piena proprietà per l’intero su appartamento di civile abitazione e garage pertinenziale con resede privato siti in Comune di Cortona località La Fratta, Case sparse Burcinella, Fratta n. 220/A, oltre a porzione di resede per la quota di 5/150 di proprietà e ai diritti proporzionali sulle parti comuni e condominiali al fabbricato di cui i beni in oggetto fanno parte. Prezzo base € 115.000,00 (offerta minima € 86.250,00). Data vendita 22/01/2026 ore 16:00. Professionista delegato alla vendita Avv. Fabio Appiano - Email "avvfabioappiano@gmail.com"; Cell. 3402583119; Tel. 0575908261. Custode Giudiziario Avv. Istituto Vendite Giudiziarie Arezzo - Siena - Email "visite.ivg@gmail.com"; Cell. 3397337017; Tel. 0577318111. Rif. Tribunale di Arezzo - Esecuzione immobiliare post legge 80 n. 220/2021

Superficie mq
Vani
Bagni
Piano 0

Tipologia di vendita Giudiziaria
Modalità di vendita Sincrona mista
Termine presentazione offerte 01/01/1900 ore 00:00
Data e ora inizio gara 22/01/2026 ore 16:00
Codice ID astegiudiziarie.it 4338096
0
€ 115.000

Ti interessa questa vendita?

north_east

Clicca qui per essere indirizzato alla scheda sul sito di provenienza

Bene di astegiudiziarie.it