highlight_off
Riferimento annuncio 312807 info

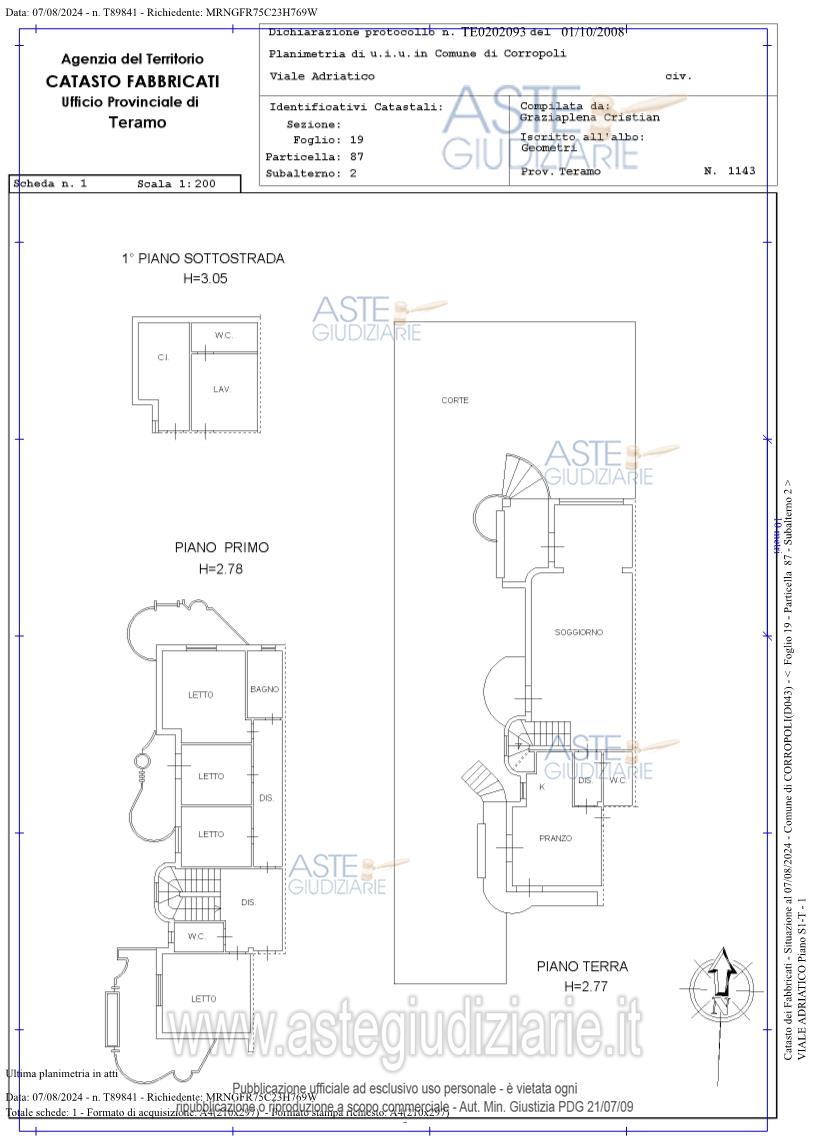
Appartamento Viale Adriatico 94, 64013 Corropoli (TE)

11,00
470,00
0
€ 170.250
Vendita all'asta Senza incanto, con gara telematica asincrona - LOTTO 1: Diritti pari a 1/1 di p.p. su fabbricato di civile abitazione della consistenza di 11 vani catastali, P.S1-T-1; diritti pari a 1/1 p.p. su appartamento posto al piano secondo (sottotetto) di 5 vani catastali; diritti pari a 1/1 di p.p. su locale uso garage posto al piano primo sottostrada. Prezzo base € 170.250,00 (offerta minima € 127.687,50). Data inizio operazioni di vendita: 14/01/2026 ore 15:00. Professionista delegato alla vendita Avv. Simona Valente - Email "simona.valente@savlex.it"; Cell. 337342934; Tel. 0861250303. Custode Giudiziario Avv. Simona Valente - Email "simona.valente@savlex.it"; Cell. 337342934; Tel. 0861250303. Rif. Tribunale di Teramo - Esecuzione immobiliare post legge 80 n. 340/2017

Superficie 470,00 mq
Vani 11,00
Bagni
Piano 0

Tipologia di vendita Giudiziaria
Modalità di vendita Asincrona telematica
Termine presentazione offerte 13/01/2026 ore 23:59
Data e ora inizio gara 14/01/2026 ore 15:00
Codice ID astegiudiziarie.it 4333942
11,00
470,00
0
€ 170.250

Ti interessa questa vendita?

north_east

Clicca qui per essere indirizzato alla scheda sul sito di provenienza

Bene di astegiudiziarie.it