highlight_off
Riferimento annuncio 323749 info

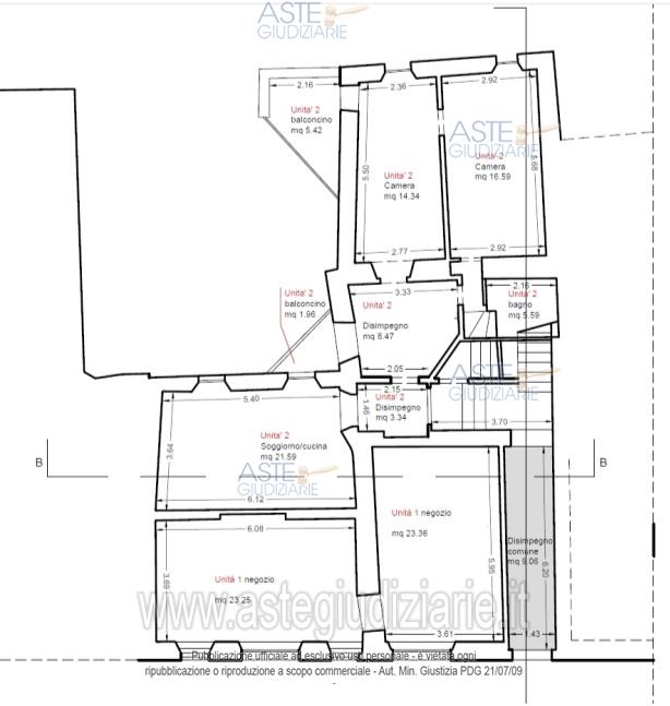
Appartamento Via Giuseppe Garibaldi, 43, 62014 Corridonia MC, Italia, 62014 Corridonia (MC)

0
€ 61.875
Vendita all'asta Senza incanto, con gara telematica sincrona mista - LOTTO 02: unità imm. costituita da abitazione, cantina, ripostiglio/ingresso, al piano terra e primo seminterrato (in corso di ristrutturazione). Prezzo base € 61.875,00 (offerta minima € 46.406,25). Data vendita 17/03/2026 ore 15:00. Professionista delegato alla vendita Avv. Emanuela Scaleggi - Email "avvemanuelascaleggi@gmail.com". Custode Giudiziario Avv. Emanuela Scaleggi - Email "avvemanuelascaleggi@gmail.com". Rif. Tribunale di Macerata - Espropriazione immobiliare (cartabia) n. 28/2024

Superficie mq
Vani
Bagni
Piano 0

Tipologia di vendita Giudiziaria
Modalità di vendita Sincrona mista
Termine presentazione offerte 16/03/2026 ore 12:00
Data e ora inizio gara 17/03/2026 ore 15:00
Codice ID astegiudiziarie.it 4329893
0
€ 61.875

Ti interessa questa vendita?

north_east

Clicca qui per essere indirizzato alla scheda sul sito di provenienza

Bene di astegiudiziarie.it