highlight_off
Riferimento annuncio 286156 info

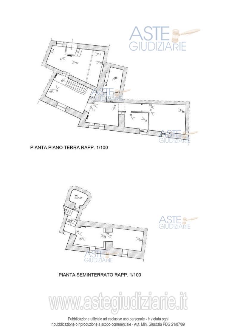
Appartamento VICOLO DEL MILITE 12, 04010 Cori (LT)

8,00
147,00
0
€ 36.291
Vendita all'asta Competitiva, con gara telematica asincrona - LOTTO UNICO: APPARTAMENTO SU DUE PIANI MQ 147. Prezzo base € 36.291,37 (offerta minima € 27.218,53). Data inizio operazioni di vendita: 16/12/2025 ore 15:00. Professionista delegato alla vendita Dott. Giuseppe Di Trento - Email "GIUSEPPE.DITRENTO@VIRGILIO.IT"; Cell. 3332325560; Tel. 3332325560. Custode Giudiziario Dott. Giuseppe Di Trento - Email "GIUSEPPE.DITRENTO@VIRGILIO.IT"; Cell. 3332325560; Tel. 3332325560. Rif. Tribunale di Latina - Esecuzione immobiliare post legge 80 n. 66/2022

Superficie 147,00 mq
Vani 8,00
Bagni
Piano 0

Tipologia di vendita Giudiziaria
Modalità di vendita Asincrona telematica
Termine presentazione domande 01/01/1900 ore 00:00
Data e ora inizio gara 16/12/2025 ore 15:00
Codice ID astegiudiziarie.it 4313165
8,00
147,00
0
€ 36.291

Ti interessa questa vendita?

north_east

Clicca qui per essere indirizzato alla scheda sul sito di provenienza

Bene di astegiudiziarie.it