highlight_off
Riferimento annuncio 296975 info

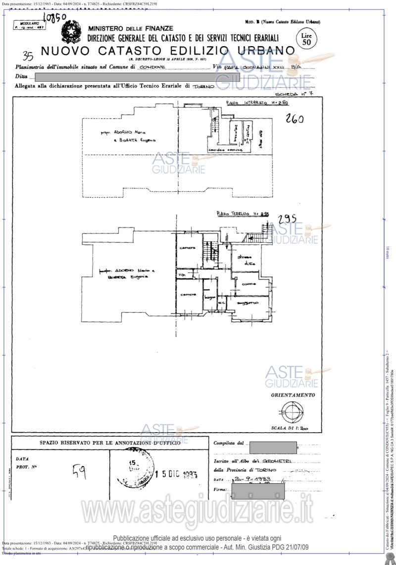
Appartamento Via Leopardi 8/A, 10055 Condove (TO)

4,00
125,00
0
€ 75.000
Vendita all'asta Senza incanto, con gara telematica asincrona - LOTTO 1: appartamento della superficie commerciale è di 125 mq circa, così composto: un ampio ingresso con funzione di distribuzione in tutte le stanze della casa ed in particolare una cucina, un soggiorno,. Prezzo base € 75.000,00 (offerta minima € 56.250,00). Data inizio operazioni di vendita: 19/12/2025 ore 16:00. Giudice Dott. Anna Castellino. Professionista delegato alla vendita Dott. Piergiorgio Mazza - Email "dottmazza@studiomazza.com"; Tel. 011482960. Custode Giudiziario Dott. Piergiorgio Mazza - Email "custode@studiomazza.com"; Tel. 011482960. Rif. Tribunale di Torino - Espropriazione immobiliare (cartabia) n. 599/2023

Superficie 125,00 mq
Vani 4,00
Bagni
Piano 0

Tipologia di vendita Giudiziaria
Modalità di vendita Asincrona telematica
Termine presentazione offerte 01/01/1900 ore 00:00
Data e ora inizio gara 19/12/2025 ore 16:00
Codice ID astegiudiziarie.it 4321431
4,00
125,00
0
€ 75.000

Ti interessa questa vendita?

north_east

Clicca qui per essere indirizzato alla scheda sul sito di provenienza

Bene di astegiudiziarie.it