highlight_off
Riferimento annuncio 304613 info

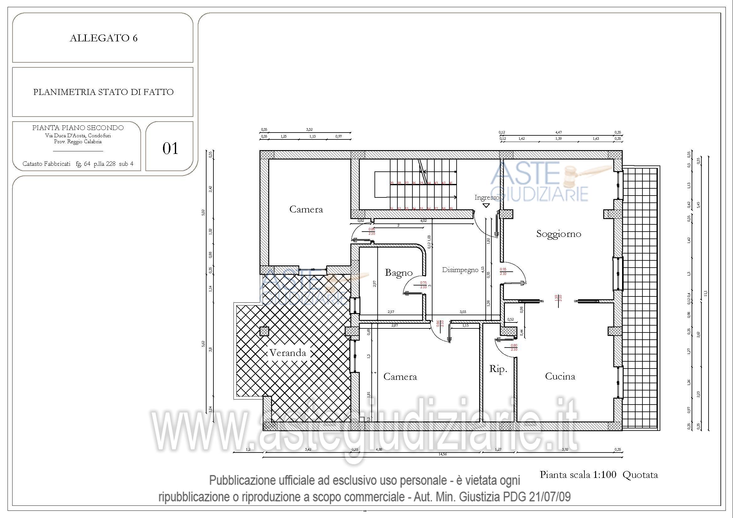
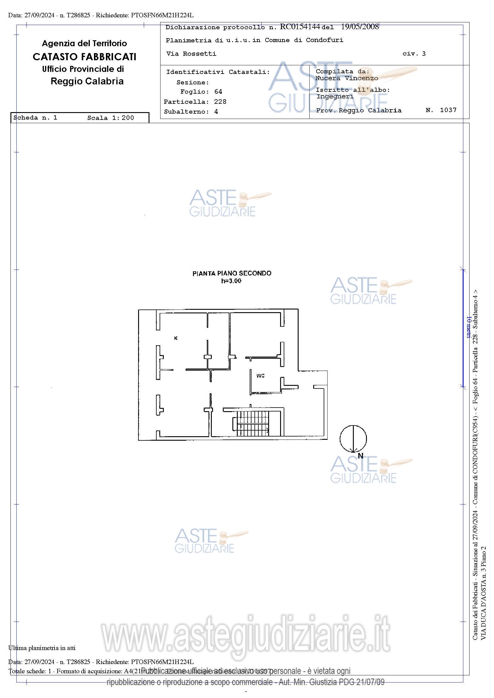
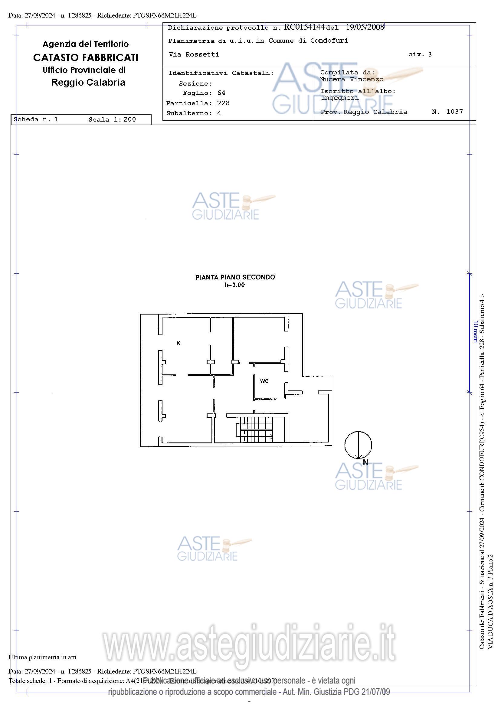
Appartamento Via Duca D'Aosta, 3, 89030 Condofuri (RC)

50,00
116,00
2
€ 33.159
Vendita all'asta Senza incanto, con gara telematica asincrona - LOTTO UNICO: Unità immobiliare posta al secondo piano (terzo fuori terra) di un maggior fabbricato costituito da quattro piani fuori terra. Prezzo base € 33.159,38 (offerta minima € 24.869,54). Data inizio operazioni di vendita: 22/07/2026 ore 10:00. Giudice: Dott. Stefano Cantone. Professionista delegato alla vendita: Avv. Ezio Privitera - Email "avvezioprivitera@libero.it"; Tel. 0965/25480. Custode Giudiziario: Avv. Ezio Privitera - Email "avvezioprivitera@libero.it"; Tel. 0965/25480. Rif. Tribunale di Reggio di Calabria - Espropriazione immobiliare (cartabia) n. 55/2024

Superficie 116,00 mq
Vani 50,00
Bagni
Piano 2

Tipologia di vendita Giudiziaria
Modalità di vendita Asincrona telematica
Termine presentazione offerte 01/01/1900 ore 00:00
Data e ora inizio gara 22/07/2026 ore 10:00
Codice ID astegiudiziarie.it 4327488
50,00
116,00
2
€ 33.159

Ti interessa questa vendita?

north_east

Clicca qui per essere indirizzato alla scheda sul sito di provenienza

Bene di astegiudiziarie.it