highlight_off
Riferimento annuncio 294264 info

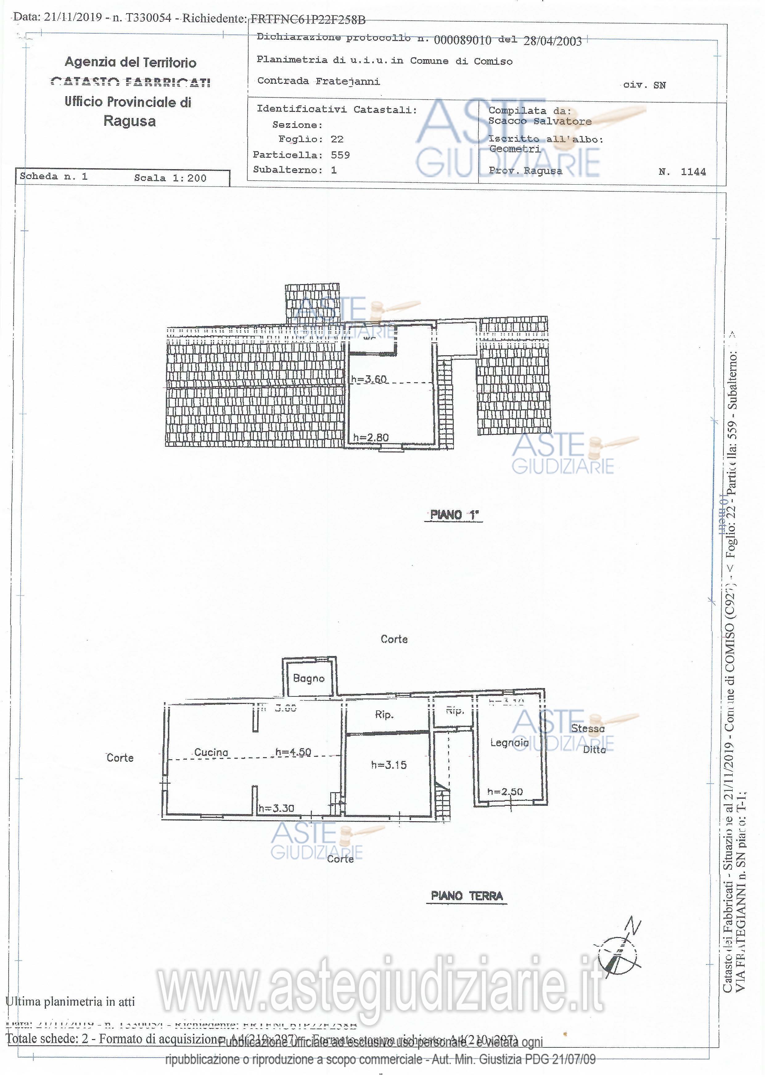
Appartamento Via Frategianni, 97013 Comiso RG, Italia, 97013 Comiso (RG)

7,50
16850,00
0
€ 42.048
Vendita all'asta Senza incanto, con gara telematica sincrona mista - LOTTO UNICO: Diritto di proprietà (1/1) di un terreno con entrostante fabbricato per abitazione, con la comproprietà di un pozzo trivellato, sito nella contrada Frate Gianni, tenere di Comiso. Prezzo base € 42.048,00 (offerta minima € 31.536,00). Data vendita 31/03/2026 ore 10:30. Giudice Dott. Carlo Di Cataldo. Professionista delegato alla vendita Avv. Giorgio Zocco. Custode Giudiziario Avv. Giorgio Zocco - Email "avv.giorgiozocco@gmail.com"; Tel. 09321972174. Rif. Tribunale di Ragusa - Esecuzione immobiliare post legge 80 n. 262/2019

Superficie 16850,00 mq
Vani 7,50
Bagni
Piano 0

Tipologia di vendita Giudiziaria
Modalità di vendita Sincrona mista
Termine presentazione offerte 30/03/2026 ore 13:00
Data e ora inizio gara 31/03/2026 ore 10:30
Codice ID astegiudiziarie.it 4319399
7,50
16850,00
0
€ 42.048

Ti interessa questa vendita?

north_east

Clicca qui per essere indirizzato alla scheda sul sito di provenienza

Bene di astegiudiziarie.it