highlight_off
Riferimento annuncio 328096 info

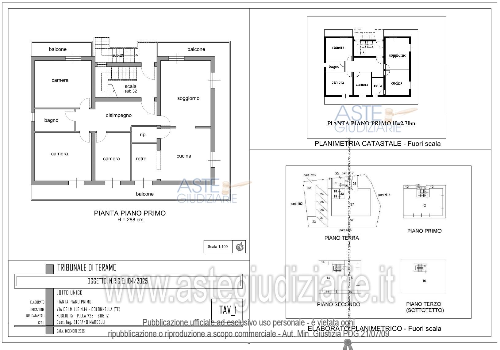
Appartamento Via dei Mille n. 14, 64010 Colonnella (TE)

6,50
153,00
1
€ 70.000
Vendita all'asta Senza incanto aumento di quinto, con gara telematica asincrona - LOTTO UNICO: appartamento facente parte di un fabbricato di maggiore consistenza ubicato in Colonnella (TE) - Via dei Mille n. 14 (ang. Via Bruni). L’unità immobiliare a destinazione residenziale è posta al piano primo si compone di un ingresso che introduce alla zona giorno articolata in soggiorno-pranzo con annesso cucinino; un disimpegno serve poi la zona notte, composta da tre camere da letto, oltre a un bagno, un locale ripostiglio e un balcone con affacci sui lati nord, est e sud dell’edificio. Prezzo base € 70.000,00 (offerta minima € 52.500,00). Data inizio operazioni di vendita: 29/04/2026 ore 15:00. Professionista delegato alla vendita: Avv. Sandro Napolitani - Email "studiolegalenapolitani@gmail.com"; Tel. 0861/1950592; Cell. 335/387930. Custode Giudiziario: Avv. Sandro Napolitani - Email "studiolegalenapolitani@gmail.com"; Tel. 0861/1950592; Cell. 335/387930. Rif. Tribunale di Teramo - Espropriazione immobiliare (cartabia) n. 104/2025

Superficie 153,00 mq
Vani 6,50
Bagni
Piano 1

Tipologia di vendita Giudiziaria
Modalità di vendita Asincrona telematica
Termine presentazione domande 01/01/1900 ore 00:00
Data e ora inizio gara 29/04/2026 ore 15:00
Codice ID astegiudiziarie.it 4346625
6,50
153,00
1
€ 70.000

Ti interessa questa vendita?

north_east

Clicca qui per essere indirizzato alla scheda sul sito di provenienza

Bene di astegiudiziarie.it